Elected Officials
Courts
Departments
Initiatives
Open Government
About
Login / Register
Home
/
Property & Tax Records
/
Property Records
/
Property & Tax Search
/
Parcel Profile
/
Print View
Search for Another Parcel
Parcel Profile
Historical Card
Sketches
Photos
Tax Map
Taxes
Print View
Print This Page
Address: 1102 POTOMAC AVE
Parcel: 33027086001600
Parcel Profile
Address
1102 | POTOMAC | AVE
Street Status
PAVED
School District
MILLCREEK SCHOOL
Acreage
0.6434
Classification
R
Land Use Code
SINGLE FAMILY
Legal Description
1102 POTOMAC AVE 160X175.24IRR
Square Feet
1944
Topo
LEVEL
Utility
ALL PUBLIC
Zoning
Please contact your municipal zoning officer
Deed Book
2017
Deed Page
001678
2026 Tax Values
Land Value / Taxable
26,900 / 26,900.00
Building Value / Taxable
109,490 / 109,490.00
Total Value / Taxable
136,390 / 136,390.00
Clean & Green
Inactive
Homestead Status
Inactive
Farmstead Status
Inactive
Lerta Amount
0
Lerta Expiration Year
0
Residential Data
Card 1
Style
BUNGALOW
Basement
FULL
Year Built
1919
Exterior Wall
FRAME
Total Living Area
1944
Full Baths
2
Half Baths
0
Fuel Type
GAS
Heating
CENTRAL
Heating System
HOT WATER
Stories
1.0
Total Bedrooms
4
Total Family Rooms
0
Total Rooms
7
Fireplaces
1
Other Buildings & Yards
Description
Built
Width
Length
Area
FRAME OR CB DETACHED GARAGE
1990
24
40
960
Sales History
Sale Date
Type
Price
Book / Page
Other Info
1/25/2017
LAND & BUILDING
0
2017 / 001678
QUIT/CLAIM SURVIVORSHIP
10/11/1972
0
1080 / 0434
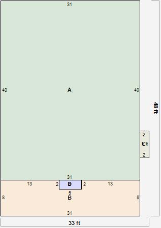
Parcel Sketches
Residential Card 1
A
MAIN
1240 square feet
B
OFP OPEN FRAME PORCH
238 square feet
C
FROVR FRAME OVERHANG
12 square feet
D
1S FR ONE STORY FRAME
10 square feet
Parcel Images
Please note:
this tab is for informational purposes only and may not show all delinquencies, see the Taxes tab for more accurate delinquent taxes due.