Elected Officials
Courts
Departments
Initiatives
Open Government
About
Login / Register
Home
/
Property & Tax Records
/
Property Records
/
Property & Tax Search
/
Parcel Profile
/
Print View
Search for Another Parcel
Parcel Profile
Historical Card
Sketches
Photos
Tax Map
Taxes
Print View
Print This Page
Address: 1121 CHELSEA AVE
Parcel: 33027087001200
Parcel Profile
Address
1121 | CHELSEA | AVE
Street Status
PAVED | SIDEWALK
School District
MILLCREEK SCHOOL
Acreage
0.3152
Classification
R
Land Use Code
SINGLE FAMILY
Legal Description
1121 CHELSEA 70 X 208 IRR
Square Feet
1183
Topo
LEVEL
Utility
ALL PUBLIC
Zoning
Please contact your municipal zoning officer
Deed Book
2022
Deed Page
023602
2026 Tax Values
Land Value / Taxable
24,300 / 24,300.00
Building Value / Taxable
88,150 / 88,150.00
Total Value / Taxable
112,450 / 112,450.00
Clean & Green
Inactive
Homestead Status
Inactive
Farmstead Status
Inactive
Lerta Amount
0
Lerta Expiration Year
0
Residential Data
Card 1
Style
CAPE
Basement
FULL
Year Built
1936
Exterior Wall
BRICK
Total Living Area
1183
Full Baths
1
Half Baths
1
Fuel Type
GAS
Heating
CENTRAL
Heating System
HOT WATER
Stories
1.5
Total Bedrooms
2
Total Family Rooms
0
Total Rooms
5
Fireplaces
1
Other Buildings & Yards
Description
Built
Width
Length
Area
FRAME OR CB DETACHED GARAGE
1936
14
20
280
FRAME UTILITY SHED
1999
12
12
144
Sales History
Sale Date
Type
Price
Book / Page
Other Info
11/1/2022
LAND & BUILDING
0
2022 / 023602
DEED
12/15/1995
LAND & BUILDING
85000
0417 / 0731
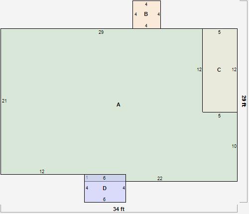
Parcel Sketches
Residential Card 1
A
MAIN
676 square feet
B
MA STOOP/TERR MAS STOOP
16 square feet
C
OMP OPEN MASONRY PORCH
60 square feet
D
MA STOOP/TERR MAS STOOP
24 square feet
Parcel Images
Please note:
this tab is for informational purposes only and may not show all delinquencies, see the Taxes tab for more accurate delinquent taxes due.