Elected Officials
Courts
Departments
Initiatives
Open Government
About
Login / Register
Home
/
Property & Tax Records
/
Property Records
/
Property & Tax Search
/
Parcel Profile
/
Print View
Search for Another Parcel
Parcel Profile
Historical Card
Sketches
Photos
Tax Map
Taxes
Print View
Print This Page
Address: 1404 CHELSEA AVE
Parcel: 33027161001100
Parcel Profile
Address
1404 | CHELSEA | AVE
Street Status
PAVED | SIDEWALK
School District
MILLCREEK SCHOOL
Acreage
0.1653
Classification
R
Land Use Code
SINGLE FAMILY
Legal Description
1404 CHELSEA AVE 60 X 120
Square Feet
1115
Topo
LEVEL
Utility
ALL PUBLIC
Zoning
Please contact your municipal zoning officer
Deed Book
2015
Deed Page
010899
2026 Tax Values
Land Value / Taxable
20,800 / 20,800.00
Building Value / Taxable
81,700 / 81,700.00
Total Value / Taxable
102,500 / 102,500.00
Clean & Green
Inactive
Homestead Status
Inactive
Farmstead Status
Inactive
Lerta Amount
0
Lerta Expiration Year
0
Residential Data
Card 1
Style
CAPE
Basement
FULL
Year Built
1936
Exterior Wall
FRAME
Total Living Area
1115
Full Baths
1
Half Baths
0
Fuel Type
GAS
Heating
CENTRAL A/C
Heating System
NONE
Stories
1.0
Total Bedrooms
2
Total Family Rooms
0
Total Rooms
4
Fireplaces
0
Other Buildings & Yards
No OBY Data Found
Sales History
Sale Date
Type
Price
Book / Page
Other Info
5/29/2015
LAND & BUILDING
100000
2015 / 010899
DEED
2/5/1960
0
0814 / 0459
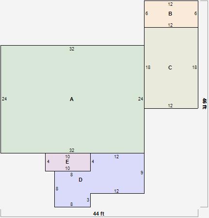
Parcel Sketches
Residential Card 1
A
MAIN
768 square feet
B
FR GR FRAME GARAGE
72 square feet
C
FR GR FRAME GARAGE
216 square feet
D
WDDCK WOOD DECKS
172 square feet
E
1S FR ONE STORY FRAME
40 square feet
Parcel Images
Please note:
this tab is for informational purposes only and may not show all delinquencies, see the Taxes tab for more accurate delinquent taxes due.