Address: 1106 OREGON AVE   Parcel: 33028073001000
Parcel Profile
Address1106 | OREGON | AVE
Street StatusPAVED
School DistrictMILLCREEK SCHOOL
Acreage0.2410
ClassificationR
Land Use CodeSINGLE FAMILY
Legal Description1106 OREGON AVE 70 X 150
Square Feet2324
TopoLEVEL
UtilityALL PUBLIC
ZoningPlease contact your municipal zoning officer
Deed Book2022
Deed Page03112022
2025 Tax Values
Land Value / Taxable23,000 / 23,000.00
Building Value / Taxable104,030 / 104,030.00
Total Value / Taxable127,030 / 127,030.00
Clean & GreenInactive
Homestead StatusActive
Farmstead StatusInactive
Lerta Amount0
Lerta Expiration Year0
Residential Data
Card 1
     StyleOLD STYLE
     BasementFULL
     Year Built1938
     Exterior WallFRAME
     Total Living Area2324
     Full Baths1
     Half Baths0
     Fuel TypeGAS
     HeatingCENTRAL A/C
     Heating SystemFORCED AIR
     Stories2.0
     Total Bedrooms3
     Total Family Rooms1
     Total Rooms8
     Fireplaces0
Other Buildings & Yards
No OBY Data Found
Sales History
Sale DateTypePriceBook / PageOther Info
3/11/2022LAND & BUILDING1350002022 / 03112022SPECIAL WARRANTY DEED
9/16/2010LAND & BUILDING02010 / 022814QUIT CLAIM DEED
3/18/2002LAND & BUILDING0862 / 1394AFFIDAVIT



Parcel Sketches

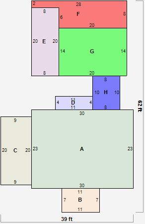
Residential Card 1

Residential Card 1
AMAIN690 square feet
B OFP OPEN FRAME PORCH 77 square feet
CUNFIN BSMT BASEMENT UNFINISHED 1S FR ONE STORY FRAME 180 square feet
D 1S FR ONE STORY FRAME 44 square feet
E WDDCK WOOD DECKS WDDCK WOOD DECKS 160 square feet
F WDDCK WOOD DECKS 176 square feet
GUNFIN BSMT BASEMENT UNFINISHED 1S FR ONE STORY FRAME 1S FR ONE STORY FRAME 280 square feet
HUNFIN BSMT BASEMENT UNFINISHED 1S FR ONE STORY FRAME 1S FR ONE STORY FRAME 80 square feet

Parcel Images

parcel photo