Elected Officials
Courts
Departments
Initiatives
Open Government
About
Login / Register
Home
/
Property & Tax Records
/
Property Records
/
Property & Tax Search
/
Parcel Profile
/
Print View
Search for Another Parcel
Parcel Profile
Historical Card
Sketches
Photos
Tax Map
Taxes
Print View
Print This Page
Address: 925 HILBORN AVE
Parcel: 33029056000800
Parcel Profile
Address
925 | HILBORN | AVE
Street Status
PAVED
School District
MILLCREEK SCHOOL
Acreage
0.4522
Classification
R
Land Use Code
SINGLE FAMILY
Legal Description
925 HILBORN AVE 134 X 147
Square Feet
1658
Topo
LEVEL
Utility
ALL PUBLIC
Zoning
Please contact your municipal zoning officer
Deed Book
1506
Deed Page
0466
2026 Tax Values
Land Value / Taxable
25,400 / 25,400.00
Building Value / Taxable
68,600 / 68,600.00
Total Value / Taxable
94,000 / 94,000.00
Clean & Green
Inactive
Homestead Status
Active
Farmstead Status
Inactive
Lerta Amount
0
Lerta Expiration Year
0
Residential Data
Card 1
Style
OLD STYLE
Basement
FULL
Year Built
1927
Exterior Wall
FRAME
Total Living Area
1658
Full Baths
1
Half Baths
1
Fuel Type
GAS
Heating
CENTRAL
Heating System
FORCED AIR
Stories
2.0
Total Bedrooms
3
Total Family Rooms
0
Total Rooms
7
Fireplaces
0
Other Buildings & Yards
Description
Built
Width
Length
Area
FRAME OR CB DETACHED GARAGE
1926
32
20
640
FRAME UTILITY SHED
1926
10
20
200
Sales History
Sale Date
Type
Price
Book / Page
Other Info
8/24/1983
0
1506 / 0466
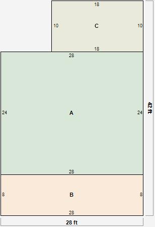
Parcel Sketches
Residential Card 1
A
MAIN
672 square feet
B
1S FR ONE STORY FRAME AT FN ATTIC-FINISHED
224 square feet
C
WDDCK WOOD DECKS
180 square feet
Parcel Images
Please note:
this tab is for informational purposes only and may not show all delinquencies, see the Taxes tab for more accurate delinquent taxes due.