Elected Officials
Courts
Departments
Initiatives
Open Government
About
Login / Register
Home
/
Property & Tax Records
/
Property Records
/
Property & Tax Search
/
Parcel Profile
/
Print View
Search for Another Parcel
Parcel Profile
Historical Card
Sketches
Photos
Tax Map
Taxes
Print View
Print This Page
Address: 926 HILBORN AVE
Parcel: 33029058001500
Parcel Profile
Address
926 | HILBORN | AVE
Street Status
PAVED
School District
MILLCREEK SCHOOL
Acreage
0.3581
Classification
R
Land Use Code
SINGLE FAMILY
Legal Description
926 HILBORN AVE LOT 19 104 X 150
Square Feet
1524
Topo
LEVEL
Utility
ALL PUBLIC
Zoning
Please contact your municipal zoning officer
Deed Book
2024
Deed Page
000047
2026 Tax Values
Land Value / Taxable
24,700 / 24,700.00
Building Value / Taxable
72,800 / 72,800.00
Total Value / Taxable
97,500 / 97,500.00
Clean & Green
Inactive
Homestead Status
Inactive
Farmstead Status
Inactive
Lerta Amount
0
Lerta Expiration Year
0
Residential Data
Card 1
Style
CAPE
Basement
NONE
Year Built
1938
Exterior Wall
STUCCO
Total Living Area
1524
Full Baths
2
Half Baths
0
Fuel Type
GAS
Heating
CENTRAL A/C
Heating System
FORCED AIR
Stories
1.0
Total Bedrooms
2
Total Family Rooms
0
Total Rooms
7
Fireplaces
1
Other Buildings & Yards
No OBY Data Found
Sales History
Sale Date
Type
Price
Book / Page
Other Info
1/2/2024
LAND & BUILDING
165000
2024 / 000047
SPECIAL WARRANTY DEED
8/14/2006
LAND & BUILDING
0
1356 / 0180
QUIT CLAIM DEED
10/31/1968
0
1013 / 0037
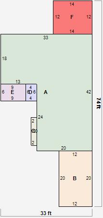
Parcel Sketches
Residential Card 1
A
MAIN
1074 square feet
B
MG/BG MASONRY/BRICK GARAGE
240 square feet
C
1S FR ONE STORY FRAME
20 square feet
D
EFP ENCL FRAME PORCH
24 square feet
E
OFP OPEN FRAME PORCH
54 square feet
F
MA_PT CONC/MAS PATIO
168 square feet
Parcel Images
Please note:
this tab is for informational purposes only and may not show all delinquencies, see the Taxes tab for more accurate delinquent taxes due.