Elected Officials
Courts
Departments
Initiatives
Open Government
About
Login / Register
Home
/
Property & Tax Records
/
Property Records
/
Property & Tax Search
/
Parcel Profile
/
Print View
Search for Another Parcel
Parcel Profile
Historical Card
Sketches
Photos
Tax Map
Taxes
Print View
Print This Page
Address: 1326 FILMORE AVE
Parcel: 33033178000500
Parcel Profile
Address
1326 | FILMORE | AVE
Street Status
PAVED
School District
MILLCREEK SCHOOL
Acreage
0.1345
Classification
R
Land Use Code
SINGLE FAMILY
Legal Description
1326 FILMORE AVE 40X146.5
Square Feet
1115
Topo
LEVEL
Utility
ALL PUBLIC
Zoning
Please contact your municipal zoning officer
Deed Book
0779
Deed Page
0507
2026 Tax Values
Land Value / Taxable
20,300 / 20,300.00
Building Value / Taxable
58,580 / 58,580.00
Total Value / Taxable
78,880 / 78,880.00
Clean & Green
Inactive
Homestead Status
Active
Farmstead Status
Inactive
Lerta Amount
0
Lerta Expiration Year
0
Residential Data
Card 1
Style
CAPE
Basement
FULL
Year Built
1947
Exterior Wall
ALUMINUM/VINYL
Total Living Area
1115
Full Baths
1
Half Baths
0
Fuel Type
GAS
Heating
CENTRAL
Heating System
FORCED AIR
Stories
1.0
Total Bedrooms
2
Total Family Rooms
0
Total Rooms
4
Fireplaces
0
Other Buildings & Yards
No OBY Data Found
Sales History
Sale Date
Type
Price
Book / Page
Other Info
5/31/2001
LAND & BUILDING
71900
0779 / 0507
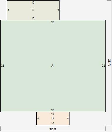
Parcel Sketches
Residential Card 1
A
MAIN
896 square feet
B
UNFIN BSMT BASEMENT UNFINISHED 1S FR ONE STORY FRAME
40 square feet
C
OFP OPEN FRAME PORCH
96 square feet
Parcel Images
Please note:
this tab is for informational purposes only and may not show all delinquencies, see the Taxes tab for more accurate delinquent taxes due.