Elected Officials
Courts
Departments
Initiatives
Open Government
About
Login / Register
Home
/
Property & Tax Records
/
Property Records
/
Property & Tax Search
/
Parcel Profile
/
Print View
Search for Another Parcel
Parcel Profile
Historical Card
Sketches
Photos
Tax Map
Taxes
Print View
Print This Page
Address: 1301 FILMORE AVE
Parcel: 33033187000100
Parcel Profile
Address
1301 | FILMORE | AVE
Street Status
PAVED
School District
MILLCREEK SCHOOL
Acreage
0.1300
Classification
R
Land Use Code
SINGLE FAMILY
Legal Description
1301 FILMORE AVE 40.44 X 140
Square Feet
1260
Topo
LEVEL
Utility
ALL PUBLIC
Zoning
Please contact your municipal zoning officer
Deed Book
2024
Deed Page
011833
2026 Tax Values
Land Value / Taxable
20,200 / 20,200.00
Building Value / Taxable
60,830 / 60,830.00
Total Value / Taxable
81,030 / 81,030.00
Clean & Green
Inactive
Homestead Status
Inactive
Farmstead Status
Inactive
Lerta Amount
0
Lerta Expiration Year
0
Residential Data
Card 1
Style
CAPE
Basement
FULL
Year Built
1936
Exterior Wall
ALUMINUM/VINYL
Total Living Area
1260
Full Baths
2
Half Baths
0
Fuel Type
GAS
Heating
CENTRAL
Heating System
FORCED AIR
Stories
1.5
Total Bedrooms
4
Total Family Rooms
0
Total Rooms
6
Fireplaces
0
Other Buildings & Yards
No OBY Data Found
Sales History
Sale Date
Type
Price
Book / Page
Other Info
7/31/2024
LAND & BUILDING
125000
2024 / 011833
SPECIAL WARRANTY DEED
6/29/2010
LAND & BUILDING
56000
2010 / 015526
DEED
8/25/2004
LAND & BUILDING
64000
1167 / 0739
WARRANTY/SURVIVORSHIP DEED
10/16/1995
LAND & BUILDING
49000
408 / 908
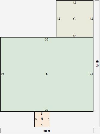
Parcel Sketches
Residential Card 1
A
MAIN
720 square feet
B
OFP OPEN FRAME PORCH
25 square feet
C
MA_PT CONC/MAS PATIO
144 square feet
Parcel Images
Please note:
this tab is for informational purposes only and may not show all delinquencies, see the Taxes tab for more accurate delinquent taxes due.