Elected Officials
Courts
Departments
Initiatives
Open Government
About
Login / Register
Home
/
Property & Tax Records
/
Property Records
/
Property & Tax Search
/
Parcel Profile
/
Print View
Search for Another Parcel
Parcel Profile
Historical Card
Sketches
Photos
Tax Map
Taxes
Print View
Print This Page
Address: 2725 W 13 ST
Parcel: 33033187001500
Parcel Profile
Address
2725 | W | 13 | ST
Street Status
PAVED
School District
MILLCREEK SCHOOL
Acreage
0.2579
Classification
R
Land Use Code
SINGLE FAMILY
Legal Description
2725 W 13 ST 80 X 140.44
Square Feet
1550
Topo
LEVEL
Utility
ALL PUBLIC
Zoning
Please contact your municipal zoning officer
Deed Book
2023
Deed Page
021308
2025 Tax Values
Land Value / Taxable
23,500 / 23,500.00
Building Value / Taxable
65,100 / 65,100.00
Total Value / Taxable
88,600 / 88,600.00
Clean & Green
Inactive
Homestead Status
Inactive
Farmstead Status
Inactive
Lerta Amount
0
Lerta Expiration Year
0
Residential Data
Card 1
Style
RANCH
Basement
NONE
Year Built
1900
Exterior Wall
ALUMINUM/VINYL
Total Living Area
1550
Full Baths
1
Half Baths
0
Fuel Type
GAS
Heating
CENTRAL
Heating System
FORCED AIR
Stories
1.0
Total Bedrooms
2
Total Family Rooms
1
Total Rooms
7
Fireplaces
1
Other Buildings & Yards
No OBY Data Found
Sales History
Sale Date
Type
Price
Book / Page
Other Info
12/8/2023
LAND & BUILDING
50000
2023 / 021308
SHERIFF'S DED
8/17/1982
0
1466 / 0432
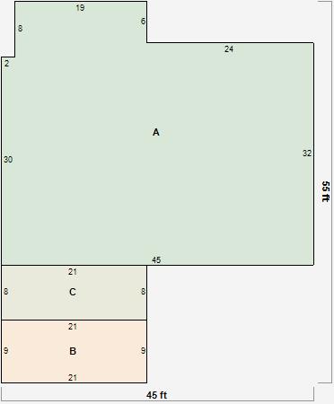
Parcel Sketches
Residential Card 1
A
MAIN
1550 square feet
B
MA_PT CONC/MAS PATIO
189 square feet
C
OFP OPEN FRAME PORCH
168 square feet
Parcel Images