Elected Officials
Courts
Departments
Initiatives
Open Government
About
Login / Register
Home
/
Property & Tax Records
/
Property Records
/
Property & Tax Search
/
Parcel Profile
/
Print View
Search for Another Parcel
Parcel Profile
Historical Card
Sketches
Photos
Tax Map
Taxes
Print View
Print This Page
Address: 3663 W 14 ST
Parcel: 33036164002300
Parcel Profile
Address
3663 | W | 14 | ST
Street Status
PAVED
School District
MILLCREEK SCHOOL
Acreage
0.5751
Classification
R
Land Use Code
SINGLE FAMILY
Legal Description
3663 W 14 ST 83.50 X 300 IRR
Square Feet
1638
Topo
ABOVE STREET
Utility
ALL PUBLIC
Zoning
Please contact your municipal zoning officer
Deed Book
2017
Deed Page
006341
2026 Tax Values
Land Value / Taxable
26,200 / 26,200.00
Building Value / Taxable
92,050 / 92,050.00
Total Value / Taxable
118,250 / 118,250.00
Clean & Green
Inactive
Homestead Status
Active
Farmstead Status
Inactive
Lerta Amount
0
Lerta Expiration Year
0
Residential Data
Card 1
Style
CAPE
Basement
FULL
Year Built
1934
Exterior Wall
ALUMINUM/VINYL
Total Living Area
1638
Full Baths
1
Half Baths
1
Fuel Type
GAS
Heating
CENTRAL A/C
Heating System
FORCED AIR
Stories
1.5
Total Bedrooms
4
Total Family Rooms
0
Total Rooms
7
Fireplaces
0
Other Buildings & Yards
Description
Built
Width
Length
Area
FRAME OR CB DETACHED GARAGE
1939
20
20
400
REINFORCED CONCRETE POOL
1960
0
0
427
DIVING BOARD
1960
0
0
1
Sales History
Sale Date
Type
Price
Book / Page
Other Info
3/29/2017
LAND & BUILDING
159500
2017 / 006341
WARRANTY/SURVIVORSHIP DEED
4/19/1996
LAND & BUILDING
104000
434 / 2284
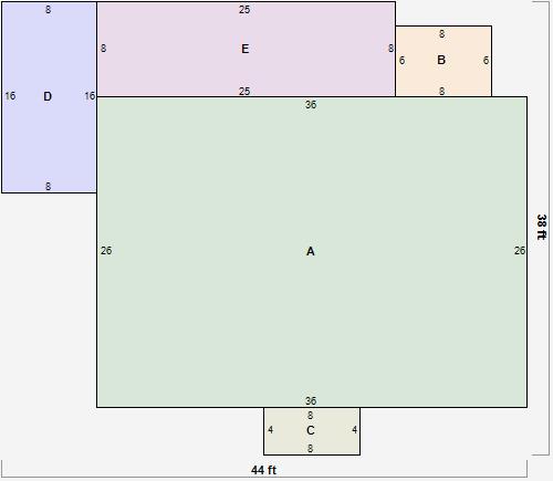
Parcel Sketches
Residential Card 1
A
MAIN
936 square feet
B
EFP ENCL FRAME PORCH
48 square feet
C
OFP OPEN FRAME PORCH
32 square feet
D
OFP OPEN FRAME PORCH
128 square feet
E
EFP ENCL FRAME PORCH
200 square feet
Parcel Images
Please note:
this tab is for informational purposes only and may not show all delinquencies, see the Taxes tab for more accurate delinquent taxes due.