Elected Officials
Courts
Departments
Initiatives
Open Government
About
Login / Register
Home
/
Property & Tax Records
/
Property Records
/
Property & Tax Search
/
Parcel Profile
/
Print View
Search for Another Parcel
Parcel Profile
Historical Card
Sketches
Photos
Tax Map
Taxes
Print View
Print This Page
Address: 4750 VERNON RD
Parcel: 33039146000203
Parcel Profile
Address
4750 | VERNON | RD
Street Status
PAVED
School District
MILLCREEK SCHOOL
Acreage
0.4620
Classification
R
Land Use Code
SINGLE FAMILY
Legal Description
4750 VERNON RD 115 X 175
Square Feet
1166
Topo
LEVEL
Utility
ALL PUBLIC
Zoning
Please contact your municipal zoning officer
Deed Book
1134
Deed Page
0476
2026 Tax Values
Land Value / Taxable
25,400 / 25,400.00
Building Value / Taxable
84,500 / 84,500.00
Total Value / Taxable
109,900 / 109,900.00
Clean & Green
Inactive
Homestead Status
Active
Farmstead Status
Inactive
Lerta Amount
0
Lerta Expiration Year
0
Residential Data
Card 1
Style
CAPE
Basement
FULL
Year Built
1936
Exterior Wall
ALUMINUM/VINYL
Total Living Area
1166
Full Baths
1
Half Baths
1
Fuel Type
GAS
Heating
CENTRAL
Heating System
HOT WATER
Stories
1.0
Total Bedrooms
3
Total Family Rooms
0
Total Rooms
5
Fireplaces
1
Other Buildings & Yards
Description
Built
Width
Length
Area
FRAME OR CB DETACHED GARAGE
1994
24
30
720
METAL SHED
1940
8
12
96
FRAME UTILITY SHED
1940
8
16
128
1S LEAN TO
2023
8
16
128
Sales History
Sale Date
Type
Price
Book / Page
Other Info
1/3/1975
0
1134 / 0476
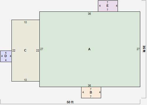
Parcel Sketches
Residential Card 1
A
MAIN
972 square feet
B
MA STOOP/TERR MAS STOOP
28 square feet
C
EFP ENCL FRAME PORCH
220 square feet
D
MA STOOP/TERR MAS STOOP
16 square feet
E
OFP OPEN FRAME PORCH
28 square feet
Parcel Images
Please note:
this tab is for informational purposes only and may not show all delinquencies, see the Taxes tab for more accurate delinquent taxes due.