Elected Officials
Courts
Departments
Initiatives
Open Government
About
Login / Register
Home
/
Property & Tax Records
/
Property Records
/
Property & Tax Search
/
Parcel Profile
/
Print View
Search for Another Parcel
Parcel Profile
Historical Card
Sketches
Photos
Tax Map
Taxes
Print View
Print This Page
Address: 1721 CLIFFORD DR
Parcel: 33040132000300
Parcel Profile
Address
1721 | CLIFFORD | DR
Street Status
PAVED
School District
MILLCREEK SCHOOL
Acreage
0.2410
Classification
R
Land Use Code
SINGLE FAMILY
Legal Description
1721 CLIFFORD DR 50 X 210
Square Feet
1272
Topo
LEVEL
Utility
ALL PUBLIC
Zoning
Please contact your municipal zoning officer
Deed Book
0643
Deed Page
1345
2026 Tax Values
Land Value / Taxable
23,100 / 23,100.00
Building Value / Taxable
76,400 / 76,400.00
Total Value / Taxable
99,500 / 99,500.00
Clean & Green
Inactive
Homestead Status
Inactive
Farmstead Status
Inactive
Lerta Amount
0
Lerta Expiration Year
0
Residential Data
Card 1
Style
RANCH
Basement
FULL
Year Built
1930
Exterior Wall
ALUMINUM/VINYL
Total Living Area
1272
Full Baths
1
Half Baths
0
Fuel Type
GAS
Heating
CENTRAL
Heating System
FORCED AIR
Stories
1.0
Total Bedrooms
3
Total Family Rooms
0
Total Rooms
6
Fireplaces
1
Other Buildings & Yards
No OBY Data Found
Sales History
Sale Date
Type
Price
Book / Page
Other Info
6/16/1999
0
0643 / 1345
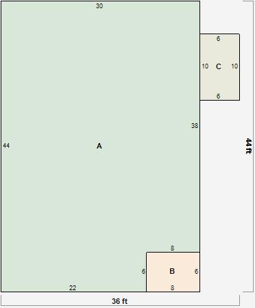
Parcel Sketches
Residential Card 1
A
MAIN
1272 square feet
B
OFP OPEN FRAME PORCH
48 square feet
C
MA STOOP/TERR MAS STOOP
60 square feet
Parcel Images
Please note:
this tab is for informational purposes only and may not show all delinquencies, see the Taxes tab for more accurate delinquent taxes due.