Elected Officials
Courts
Departments
Initiatives
Open Government
About
Login / Register
Home
/
Property & Tax Records
/
Property Records
/
Property & Tax Search
/
Parcel Profile
/
Print View
Search for Another Parcel
Parcel Profile
Historical Card
Sketches
Photos
Tax Map
Taxes
Print View
Print This Page
Address: 2708 CRESCENT DR
Parcel: 33050295004500
Parcel Profile
Address
2708 | CRESCENT | DR
Street Status
PAVED | SIDEWALK
School District
MILLCREEK SCHOOL
Acreage
0.4151
Classification
R
Land Use Code
SINGLE FAMILY
Legal Description
2708 CRESCENT DR 75 X 171
Square Feet
1131
Topo
LEVEL
Utility
ALL PUBLIC
Zoning
Please contact your municipal zoning officer
Deed Book
0097
Deed Page
1059
2026 Tax Values
Land Value / Taxable
29,100 / 29,100.00
Building Value / Taxable
71,200 / 71,200.00
Total Value / Taxable
100,300 / 100,300.00
Clean & Green
Inactive
Homestead Status
Active
Farmstead Status
Inactive
Lerta Amount
0
Lerta Expiration Year
0
Residential Data
Card 1
Style
CAPE
Basement
FULL
Year Built
1935
Exterior Wall
ALUMINUM/VINYL
Total Living Area
1131
Full Baths
1
Half Baths
0
Fuel Type
GAS
Heating
CENTRAL A/C
Heating System
FORCED AIR
Stories
1.0
Total Bedrooms
3
Total Family Rooms
0
Total Rooms
6
Fireplaces
1
Other Buildings & Yards
Description
Built
Width
Length
Area
FRAME OR CB DETACHED GARAGE
2005
24
32
768
Sales History
Sale Date
Type
Price
Book / Page
Other Info
8/30/1989
0
0097 / 1059
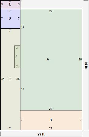
Parcel Sketches
Residential Card 1
A
MAIN
808 square feet
B
OFP OPEN FRAME PORCH
154 square feet
C
WDDCK WOOD DECKS
252 square feet
D
EFP ENCL FRAME PORCH
49 square feet
E
WDDCK WOOD DECKS
21 square feet
Parcel Images
Please note:
this tab is for informational purposes only and may not show all delinquencies, see the Taxes tab for more accurate delinquent taxes due.