Elected Officials
Courts
Departments
Initiatives
Open Government
About
Login / Register
Home
/
Property & Tax Records
/
Property Records
/
Property & Tax Search
/
Parcel Profile
/
Print View
Search for Another Parcel
Parcel Profile
Historical Card
Sketches
Photos
Tax Map
Taxes
Print View
Print This Page
Address: 2325 LOVELAND AVE
Parcel: 33053211000500
Parcel Profile
Address
2325 | LOVELAND | AVE
Street Status
PAVED
School District
MILLCREEK SCHOOL
Acreage
0.4959
Classification
R
Land Use Code
SINGLE FAMILY
Legal Description
2325 LOVELAND AVE 75 X 300
Square Feet
1504
Topo
LEVEL
Utility
ALL PUBLIC
Zoning
Please contact your municipal zoning officer
Deed Book
1463
Deed Page
0431
2026 Tax Values
Land Value / Taxable
30,000 / 30,000.00
Building Value / Taxable
86,100 / 86,100.00
Total Value / Taxable
116,100 / 116,100.00
Clean & Green
Inactive
Homestead Status
Active
Farmstead Status
Inactive
Lerta Amount
0
Lerta Expiration Year
0
Residential Data
Card 1
Style
CONVENTIONAL
Basement
FULL
Year Built
1920
Exterior Wall
ALUMINUM/VINYL
Total Living Area
1504
Full Baths
1
Half Baths
0
Fuel Type
GAS
Heating
CENTRAL
Heating System
FORCED AIR
Stories
2.0
Total Bedrooms
4
Total Family Rooms
0
Total Rooms
7
Fireplaces
0
Other Buildings & Yards
Description
Built
Width
Length
Area
FRAME OR CB DETACHED GARAGE
1920
14
24
336
FRAME UTILITY SHED
2008
12
16
192
Sales History
Sale Date
Type
Price
Book / Page
Other Info
7/15/1982
0
1463 / 0431
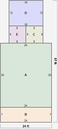
Parcel Sketches
Residential Card 1
A
MAIN
720 square feet
B
EFP ENCL FRAME PORCH
168 square feet
C
OFP OPEN FRAME PORCH
64 square feet
D
WDDCK WOOD DECKS
192 square feet
E
1S FR ONE STORY FRAME
64 square feet
Parcel Images
Please note:
this tab is for informational purposes only and may not show all delinquencies, see the Taxes tab for more accurate delinquent taxes due.