Elected Officials
Courts
Departments
Initiatives
Open Government
About
Login / Register
Home
/
Property & Tax Records
/
Property Records
/
Property & Tax Search
/
Parcel Profile
/
Print View
Search for Another Parcel
Parcel Profile
Historical Card
Sketches
Photos
Tax Map
Taxes
Print View
Print This Page
Address: 3358 W RIDGE RD
Parcel: 33053211002000
Parcel Profile
Address
3358 | W | RIDGE | RD
Street Status
PAVED
School District
MILLCREEK SCHOOL
Acreage
0.3558
Classification
C
Land Use Code
RESTAURANTS, STORES (RETAIL)
Legal Description
3358 W RIDGE RD 100 X 155
Square Feet
2596
Topo
LEVEL
Utility
ALL PUBLIC
Zoning
Please contact your municipal zoning officer
Deed Book
2016
Deed Page
028253
2026 Tax Values
Land Value / Taxable
69,800 / 69,800.00
Building Value / Taxable
69,900 / 69,900.00
Total Value / Taxable
139,700 / 139,700.00
Clean & Green
Inactive
Homestead Status
Inactive
Farmstead Status
Inactive
Lerta Amount
0
Lerta Expiration Year
0
Commercial Data
Card 1
MIXED RESIDENTIAL/COMMERCIAL
Business Living Area - 2596
Year Built - 1840
Improvement Name - EMPORIUM
Value - 69940
Other Buildings & Yards
No OBY Data Found
Sales History
Sale Date
Type
Price
Book / Page
Other Info
12/28/2016
LAND & BUILDING
90000
2016 / 028253
WARRANTY/SURVIVORSHIP DEED
1/1/1979
0
1346 / 0413
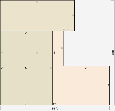
Parcel Sketches
Commercial Card 1
A
MAIN
1292 square feet
B
MAIN
1780 square feet
C
MAIN
816 square feet
Parcel Images
Please note:
this tab is for informational purposes only and may not show all delinquencies, see the Taxes tab for more accurate delinquent taxes due.