Elected Officials
Courts
Departments
Initiatives
Open Government
About
Login / Register
Home
/
Property & Tax Records
/
Property Records
/
Property & Tax Search
/
Parcel Profile
/
Print View
Search for Another Parcel
Parcel Profile
Historical Card
Sketches
Photos
Tax Map
Taxes
Print View
Print This Page
Address: 2815 COLONIAL AVE
Parcel: 33054249004700
Parcel Profile
Address
2815 | COLONIAL | AVE
Street Status
PAVED
School District
MILLCREEK SCHOOL
Acreage
0.8434
Classification
R
Land Use Code
SINGLE FAMILY
Legal Description
2815 COLONIAL AVE 100 X 367.74 IRR
Square Feet
1532
Topo
LEVEL
Utility
ALL PUBLIC
Zoning
Please contact your municipal zoning officer
Deed Book
2022
Deed Page
020363
2026 Tax Values
Land Value / Taxable
34,000 / 34,000.00
Building Value / Taxable
85,030 / 85,030.00
Total Value / Taxable
119,030 / 119,030.00
Clean & Green
Inactive
Homestead Status
Active
Farmstead Status
Inactive
Lerta Amount
0
Lerta Expiration Year
0
Residential Data
Card 1
Style
CAPE
Basement
FULL
Year Built
1922
Exterior Wall
ALUMINUM/VINYL
Total Living Area
1532
Full Baths
1
Half Baths
1
Fuel Type
GAS
Heating
CENTRAL
Heating System
FORCED AIR
Stories
1.5
Total Bedrooms
3
Total Family Rooms
0
Total Rooms
6
Fireplaces
1
Other Buildings & Yards
Description
Built
Width
Length
Area
FRAME OR CB DETACHED GARAGE
1930
20
20
400
CARPORT
1980
12
20
240
FRAME UTILITY SHED
1990
12
13
156
Sales History
Sale Date
Type
Price
Book / Page
Other Info
9/16/2022
LAND & BUILDING
190000
2022 / 020363
FIDUCIARY DEED
4/29/2016
LAND & BUILDING
0
2016 / 008435
QUIT CLAIM DEED
9/12/1988
0
0064 / 0167
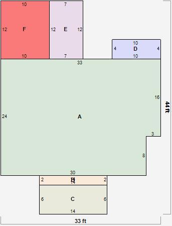
Parcel Sketches
Residential Card 1
A
MAIN
768 square feet
B
1S FR ONE STORY FRAME
28 square feet
C
MA STOOP/TERR MAS STOOP
84 square feet
D
1S FR ONE STORY FRAME
40 square feet
E
EFP ENCL FRAME PORCH
84 square feet
F
1S FR ONE STORY FRAME
120 square feet
Parcel Images
Please note:
this tab is for informational purposes only and may not show all delinquencies, see the Taxes tab for more accurate delinquent taxes due.