Elected Officials
Courts
Departments
Initiatives
Open Government
About
Login / Register
Home
/
Property & Tax Records
/
Property Records
/
Property & Tax Search
/
Parcel Profile
/
Print View
Search for Another Parcel
Parcel Profile
Historical Card
Sketches
Photos
Tax Map
Taxes
Print View
Print This Page
Address: 5050 W 38 ST
Parcel: 33060234001900
Parcel Profile
Address
5050 | W | 38 | ST
Street Status
PAVED
School District
MILLCREEK SCHOOL
Acreage
72.2230
Classification
R
Land Use Code
ESTATE
Legal Description
5050 W 38 ST 72.223 AC
Square Feet
10179
Topo
LEVEL
Utility
GAS | WELL | SEPTIC
Zoning
Please contact your municipal zoning officer
Deed Book
2012
Deed Page
010159
2026 Tax Values
Land Value / Taxable
978,100 / 194,200.00
Building Value / Taxable
1,050,500 / 1,050,500.00
Total Value / Taxable
2,028,600 / 1,244,700.00
Clean & Green
Active
Homestead Status
Inactive
Farmstead Status
Inactive
Lerta Amount
0
Lerta Expiration Year
0
Residential Data
Card 1
Style
CONVENTIONAL
Basement
FULL
Year Built
1921
Exterior Wall
BRICK
Total Living Area
8229
Full Baths
4
Half Baths
2
Fuel Type
GAS
Heating
CENTRAL A/C
Heating System
HOT WATER
Stories
2.0
Total Bedrooms
5
Total Family Rooms
0
Total Rooms
11
Fireplaces
4
Card 2
Style
CONVENTIONAL
Basement
FULL
Year Built
1925
Exterior Wall
ALUMINUM/VINYL
Total Living Area
1950
Full Baths
1
Half Baths
0
Fuel Type
GAS
Heating
CENTRAL A/C
Heating System
FORCED AIR
Stories
2.0
Total Bedrooms
3
Total Family Rooms
0
Total Rooms
7
Fireplaces
1
Other Buildings & Yards
Description
Built
Width
Length
Area
REINFORCED CONCRETE POOL
2011
24
44
1056
BANK BARN
1920
30
40
1200
FOUR SIDE CLOSED WD POLE BLDG
1920
24
60
1440
FRAME UTILITY SHED
1920
18
42
756
Sales History
Sale Date
Type
Price
Book / Page
Other Info
4/24/2012
LAND & BUILDING
0
2012 / 010159
QUIT CLAIM DEED
3/20/2009
LAND & BUILDING
0
1550 / 0163
DEED
3/2/2009
LAND & BUILDING
0
1546 / 0432
DEED
3/2/2009
LAND & BUILDING
0
1546 / 0428
DEED
8/4/2006
LAND & BUILDING
0
1350 / 1428
DEED
9/27/1954
0
0715 / 0077
Parcel Sketches
Residential Card 1
A
MAIN
2256 square feet
B
EMP ENCL MASONRY PORCH
336 square feet
C
1SMAS MASONRY 1SMAS MASONRY
476 square feet
D
1SMAS MASONRY
1020 square feet
E
MG/BG MASONRY/BRICK GARAGE 1SMAS MASONRY
1294 square feet
F
MG/BG MASONRY/BRICK GARAGE OMP OPEN MASONRY PORCH
114 square feet
G
ST_PT STONE OR TILE PATIO
658 square feet
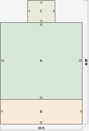
Residential Card 2
A
MAIN
840 square feet
B
1S FR ONE STORY FRAME
270 square feet
C
EFP ENCL FRAME PORCH
80 square feet
Parcel Images
Please note:
this tab is for informational purposes only and may not show all delinquencies, see the Taxes tab for more accurate delinquent taxes due.