Elected Officials
Courts
Departments
Initiatives
Open Government
About
Login / Register
Home
/
Property & Tax Records
/
Property Records
/
Property & Tax Search
/
Parcel Profile
/
Print View
Search for Another Parcel
Parcel Profile
Historical Card
Sketches
Photos
Tax Map
Taxes
Print View
Print This Page
Address: 3425 W 26 ST
Parcel: 33069257000300
Parcel Profile
Address
3425 | W | 26 | ST
Street Status
PAVED
School District
MILLCREEK SCHOOL
Acreage
1.0300
Classification
R
Land Use Code
SINGLE FAMILY
Legal Description
3425 W 26 ST LOT 6 1.03 AC CAL
Square Feet
1588
Topo
ABOVE STREET
Utility
ALL PUBLIC
Zoning
Please contact your municipal zoning officer
Deed Book
2022
Deed Page
018787
2026 Tax Values
Land Value / Taxable
32,500 / 32,500.00
Building Value / Taxable
75,740 / 75,740.00
Total Value / Taxable
108,240 / 108,240.00
Clean & Green
Inactive
Homestead Status
Active
Farmstead Status
Inactive
Lerta Amount
0
Lerta Expiration Year
0
Residential Data
Card 1
Style
RANCH
Basement
FULL
Year Built
1920
Exterior Wall
BRICK
Total Living Area
1588
Full Baths
1
Half Baths
1
Fuel Type
GAS
Heating
CENTRAL
Heating System
FORCED AIR
Stories
1.0
Total Bedrooms
4
Total Family Rooms
0
Total Rooms
6
Fireplaces
0
Other Buildings & Yards
Description
Built
Width
Length
Area
FRAME OR CB DETACHED GARAGE
1920
0
0
912
FRAME UTILITY SHED
1969
8
34
272
Sales History
Sale Date
Type
Price
Book / Page
Other Info
8/26/2022
LAND & BUILDING
85625
2022 / 018787
SPECIAL WARRANTY DEED
6/26/2003
LAND & BUILDING
128500
1028 / 702
FIDUCIARY DEED
6/9/1943
0
0436 / 0572
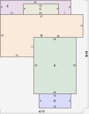
Parcel Sketches
Residential Card 1
A
MAIN
768 square feet
B
1S FR ONE STORY FRAME
820 square feet
C
MA_PT CONC/MAS PATIO CANPY CANOPY
120 square feet
D
OFP OPEN FRAME PORCH
144 square feet
E
CANPY CANOPY
200 square feet
Parcel Images
Please note:
this tab is for informational purposes only and may not show all delinquencies, see the Taxes tab for more accurate delinquent taxes due.