Elected Officials
Courts
Departments
Initiatives
Open Government
About
Login / Register
Home
/
Property & Tax Records
/
Property Records
/
Property & Tax Search
/
Parcel Profile
/
Print View
Search for Another Parcel
Parcel Profile
Historical Card
Sketches
Photos
Tax Map
Taxes
Print View
Print This Page
Address: 2802 LAFAYETTE RD
Parcel: 33069262001100
Parcel Profile
Address
2802 | LAFAYETTE | RD
Street Status
PAVED
School District
MILLCREEK SCHOOL
Acreage
0.2755
Classification
R
Land Use Code
SINGLE FAMILY
Legal Description
LOT 49 CHARTER OAKS SUB
Square Feet
1856
Topo
LEVEL
Utility
ALL PUBLIC
Zoning
Please contact your municipal zoning officer
Deed Book
2020
Deed Page
001753
2026 Tax Values
Land Value / Taxable
27,500 / 27,500.00
Building Value / Taxable
100,700 / 100,700.00
Total Value / Taxable
128,200 / 128,200.00
Clean & Green
Inactive
Homestead Status
Inactive
Farmstead Status
Inactive
Lerta Amount
0
Lerta Expiration Year
0
Residential Data
Card 1
Style
CAPE
Basement
FULL
Year Built
1925
Exterior Wall
ALUMINUM/VINYL
Total Living Area
1856
Full Baths
2
Half Baths
0
Fuel Type
GAS
Heating
CENTRAL
Heating System
FORCED AIR
Stories
1.0
Total Bedrooms
3
Total Family Rooms
0
Total Rooms
7
Fireplaces
1
Other Buildings & Yards
No OBY Data Found
Sales History
Sale Date
Type
Price
Book / Page
Other Info
1/28/2020
LAND & BUILDING
20000
2020 / 001753
TAX DEED
11/19/2007
LAND & BUILDING
0
1460 / 2398
QUIT CLAIM DEED
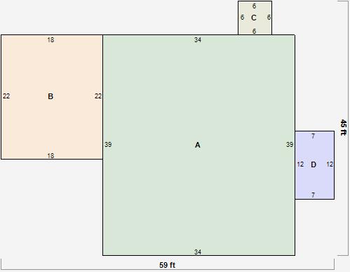
Parcel Sketches
Residential Card 1
A
MAIN
1326 square feet
B
FR GR FRAME GARAGE
396 square feet
C
FR UT FRAME UTILITY BUILDING
36 square feet
D
EFP ENCL FRAME PORCH
84 square feet
Parcel Images