Elected Officials
Courts
Departments
Initiatives
Open Government
About
Login / Register
Home
/
Property & Tax Records
/
Property Records
/
Property & Tax Search
/
Parcel Profile
/
Print View
Search for Another Parcel
Parcel Profile
Historical Card
Sketches
Photos
Tax Map
Taxes
Print View
Print This Page
Address: 2709 LAFAYETTE RD
Parcel: 33069264000900
Parcel Profile
Address
2709 | LAFAYETTE | RD
Street Status
PAVED
School District
MILLCREEK SCHOOL
Acreage
0.2755
Classification
R
Land Use Code
SINGLE FAMILY
Legal Description
2709 LAFAYETTE RD 80X150
Square Feet
1144
Topo
LEVEL
Utility
ALL PUBLIC
Zoning
Please contact your municipal zoning officer
Deed Book
0725
Deed Page
2300
2026 Tax Values
Land Value / Taxable
27,500 / 27,500.00
Building Value / Taxable
67,860 / 67,860.00
Total Value / Taxable
95,360 / 95,360.00
Clean & Green
Inactive
Homestead Status
Active
Farmstead Status
Inactive
Lerta Amount
0
Lerta Expiration Year
0
Residential Data
Card 1
Style
OLD STYLE
Basement
FULL
Year Built
1915
Exterior Wall
ALUMINUM/VINYL
Total Living Area
1144
Full Baths
1
Half Baths
0
Fuel Type
GAS
Heating
CENTRAL
Heating System
FORCED AIR
Stories
2.0
Total Bedrooms
3
Total Family Rooms
0
Total Rooms
6
Fireplaces
1
Other Buildings & Yards
Description
Built
Width
Length
Area
FRAME OR CB DETACHED GARAGE
1920
12
26
312
Sales History
Sale Date
Type
Price
Book / Page
Other Info
9/12/2000
0
0725 / 2300
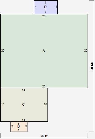
Parcel Sketches
Residential Card 1
A
MAIN
572 square feet
B
MA STOOP/TERR MAS STOOP
15 square feet
C
EFP ENCL FRAME PORCH
140 square feet
D
EFP ENCL FRAME PORCH
28 square feet
Parcel Images
Please note:
this tab is for informational purposes only and may not show all delinquencies, see the Taxes tab for more accurate delinquent taxes due.