Elected Officials
Courts
Departments
Initiatives
Open Government
About
Login / Register
Home
/
Property & Tax Records
/
Property Records
/
Property & Tax Search
/
Parcel Profile
/
Print View
Search for Another Parcel
Parcel Profile
Historical Card
Sketches
Photos
Tax Map
Taxes
Print View
Print This Page
Address: 2702 HOMER AVE
Parcel: 33070277000500
Parcel Profile
Address
2702 | HOMER | AVE
Street Status
PAVED
School District
MILLCREEK SCHOOL
Acreage
0.2059
Classification
R
Land Use Code
SINGLE FAMILY
Legal Description
2702 HOMER AVE 65 X 138
Square Feet
1890
Topo
LEVEL
Utility
ALL PUBLIC
Zoning
Please contact your municipal zoning officer
Deed Book
2024
Deed Page
004342
2026 Tax Values
Land Value / Taxable
26,100 / 26,100.00
Building Value / Taxable
93,450 / 93,450.00
Total Value / Taxable
119,550 / 119,550.00
Clean & Green
Inactive
Homestead Status
Active
Farmstead Status
Inactive
Lerta Amount
0
Lerta Expiration Year
0
Residential Data
Card 1
Style
OLD STYLE
Basement
FULL
Year Built
1930
Exterior Wall
ALUMINUM/VINYL
Total Living Area
1890
Full Baths
1
Half Baths
0
Fuel Type
GAS
Heating
CENTRAL
Heating System
FORCED AIR
Stories
2.0
Total Bedrooms
3
Total Family Rooms
0
Total Rooms
7
Fireplaces
1
Other Buildings & Yards
Description
Built
Width
Length
Area
FRAME OR CB DETACHED GARAGE
1987
22
30
660
Sales History
Sale Date
Type
Price
Book / Page
Other Info
3/22/2024
LAND & BUILDING
235000
2024 / 004342
SPECIAL WARRANTY DEED
10/22/2019
LAND & BUILDING
172000
2019 / 021572
SPECIAL WARRANTY DEED
4/26/1995
LAND & BUILDING
117000
380 / 2345
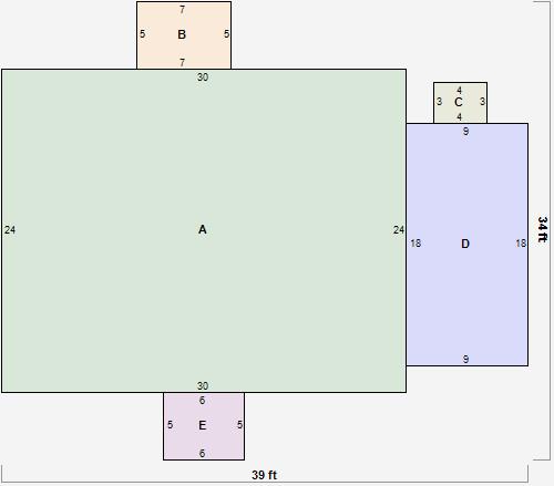
Parcel Sketches
Residential Card 1
A
MAIN
720 square feet
B
EFP ENCL FRAME PORCH
35 square feet
C
MA STOOP/TERR MAS STOOP
12 square feet
D
UNFIN BSMT BASEMENT UNFINISHED 1S FR ONE STORY FRAME
162 square feet
E
OFP OPEN FRAME PORCH
30 square feet
Parcel Images
Please note:
this tab is for informational purposes only and may not show all delinquencies, see the Taxes tab for more accurate delinquent taxes due.