Elected Officials
Courts
Departments
Initiatives
Open Government
About
Login / Register
Home
/
Property & Tax Records
/
Property Records
/
Property & Tax Search
/
Parcel Profile
/
Print View
Search for Another Parcel
Parcel Profile
Historical Card
Sketches
Photos
Tax Map
Taxes
Print View
Print This Page
Address: 2710 HOMER AVE
Parcel: 33070277000600
Parcel Profile
Address
2710 | HOMER | AVE
Street Status
PAVED
School District
MILLCREEK SCHOOL
Acreage
0.2059
Classification
R
Land Use Code
SINGLE FAMILY
Legal Description
2710 HOMER AVE 65 X 138
Square Feet
1336
Topo
LEVEL
Utility
ALL PUBLIC
Zoning
Please contact your municipal zoning officer
Deed Book
0302
Deed Page
1848
2026 Tax Values
Land Value / Taxable
26,100 / 26,100.00
Building Value / Taxable
68,710 / 68,710.00
Total Value / Taxable
94,810 / 94,810.00
Clean & Green
Inactive
Homestead Status
Active
Farmstead Status
Inactive
Lerta Amount
0
Lerta Expiration Year
0
Residential Data
Card 1
Style
CAPE
Basement
FULL
Year Built
1931
Exterior Wall
COMPOSITION
Total Living Area
1336
Full Baths
1
Half Baths
0
Fuel Type
GAS
Heating
CENTRAL
Heating System
FORCED AIR
Stories
1.0
Total Bedrooms
3
Total Family Rooms
0
Total Rooms
5
Fireplaces
1
Other Buildings & Yards
Description
Built
Width
Length
Area
FRAME OR CB DETACHED GARAGE
1931
20
20
400
Sales History
Sale Date
Type
Price
Book / Page
Other Info
11/12/1993
0
0302 / 1848
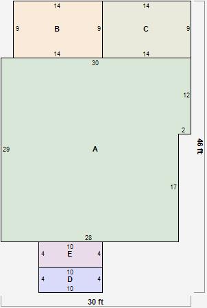
Parcel Sketches
Residential Card 1
A
MAIN
836 square feet
B
1S FR ONE STORY FRAME
126 square feet
C
OFP OPEN FRAME PORCH
126 square feet
D
MA STOOP/TERR MAS STOOP
40 square feet
E
1S FR ONE STORY FRAME
40 square feet
Parcel Images
Please note:
this tab is for informational purposes only and may not show all delinquencies, see the Taxes tab for more accurate delinquent taxes due.