Elected Officials
Courts
Departments
Initiatives
Open Government
About
Login / Register
Home
/
Property & Tax Records
/
Property Records
/
Property & Tax Search
/
Parcel Profile
/
Print View
Search for Another Parcel
Parcel Profile
Historical Card
Sketches
Photos
Tax Map
Taxes
Print View
Print This Page
Address: 2941 STERRETTANIA RD
Parcel: 33070282000100
Parcel Profile
Address
2941 | STERRETTANIA | RD
Street Status
PAVED
School District
MILLCREEK SCHOOL
Acreage
0.5478
Classification
R
Land Use Code
SINGLE FAMILY
Legal Description
2941 STERRETTANIA RD .57 AC CAL
Square Feet
1742
Topo
LEVEL
Utility
ALL PUBLIC
Zoning
Please contact your municipal zoning officer
Deed Book
2019
Deed Page
025237
2026 Tax Values
Land Value / Taxable
27,500 / 27,500.00
Building Value / Taxable
93,270 / 93,270.00
Total Value / Taxable
120,770 / 120,770.00
Clean & Green
Inactive
Homestead Status
Active
Farmstead Status
Inactive
Lerta Amount
0
Lerta Expiration Year
0
Residential Data
Card 1
Style
CAPE
Basement
FULL
Year Built
1930
Exterior Wall
BRICK
Total Living Area
1742
Full Baths
2
Half Baths
0
Fuel Type
GAS
Heating
CENTRAL A/C
Heating System
FORCED AIR
Stories
1.0
Total Bedrooms
3
Total Family Rooms
0
Total Rooms
7
Fireplaces
0
Other Buildings & Yards
Description
Built
Width
Length
Area
FRAME OR CB DETACHED GARAGE
1930
24
28
672
Sales History
Sale Date
Type
Price
Book / Page
Other Info
12/6/2019
LAND & BUILDING
174900
2019 / 025237
SPECIAL WARRANTY DEED
1/19/2010
LAND & BUILDING
0
2010 / 001402
QUIT CLAIM DEED
10/1/2008
LAND & BUILDING
144000
1523 / 1779
WARRANTY/SURVIVORSHIP DEED
7/26/1993
0
0282 / 0041
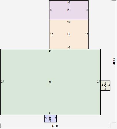
Parcel Sketches
Residential Card 1
A
MAIN
1107 square feet
B
1S FR ONE STORY FRAME
192 square feet
C
OFP OPEN FRAME PORCH
16 square feet
D
OFP OPEN FRAME PORCH
15 square feet
E
WDDCK WOOD DECKS
128 square feet
Parcel Images
Please note:
this tab is for informational purposes only and may not show all delinquencies, see the Taxes tab for more accurate delinquent taxes due.