Elected Officials
Courts
Departments
Initiatives
Open Government
About
Login / Register
Home
/
Property & Tax Records
/
Property Records
/
Property & Tax Search
/
Parcel Profile
/
Print View
Search for Another Parcel
Parcel Profile
Historical Card
Sketches
Photos
Tax Map
Taxes
Print View
Print This Page
Address: 2617 W 25 ST
Parcel: 33071196000500
Parcel Profile
Address
2617 | W | 25 | ST
Street Status
PAVED
School District
MILLCREEK SCHOOL
Acreage
0.2475
Classification
R
Land Use Code
SINGLE FAMILY
Legal Description
2617 W 25 ST 77 X 140
Square Feet
1524
Topo
LEVEL
Utility
ALL PUBLIC
Zoning
Please contact your municipal zoning officer
Deed Book
2011
Deed Page
017496
2026 Tax Values
Land Value / Taxable
27,200 / 27,200.00
Building Value / Taxable
57,800 / 57,800.00
Total Value / Taxable
85,000 / 85,000.00
Clean & Green
Inactive
Homestead Status
Active
Farmstead Status
Inactive
Lerta Amount
0
Lerta Expiration Year
0
Residential Data
Card 1
Style
CONVENTIONAL
Basement
FULL
Year Built
1938
Exterior Wall
BRICK
Total Living Area
1524
Full Baths
1
Half Baths
0
Fuel Type
GAS
Heating
CENTRAL
Heating System
HOT WATER
Stories
2.0
Total Bedrooms
4
Total Family Rooms
0
Total Rooms
7
Fireplaces
0
Other Buildings & Yards
Description
Built
Width
Length
Area
FRAME OR CB DETACHED GARAGE
1938
20
20
400
Sales History
Sale Date
Type
Price
Book / Page
Other Info
7/29/2011
LAND & BUILDING
85000
2011 / 017496
SPECIAL WARRANTY DEED
5/28/1998
0
0564 / 0283
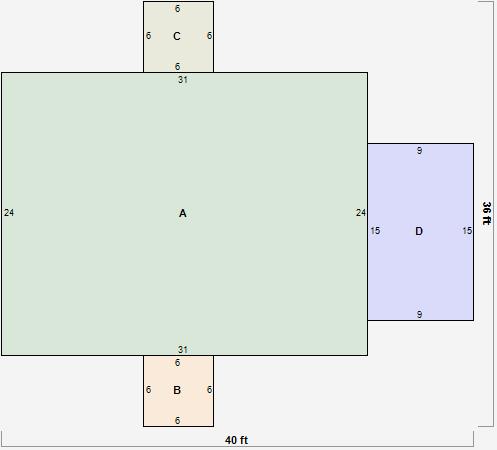
Parcel Sketches
Residential Card 1
A
MAIN
744 square feet
B
OFP OPEN FRAME PORCH
36 square feet
C
1S FR ONE STORY FRAME
36 square feet
D
OFP OPEN FRAME PORCH
135 square feet
Parcel Images
Please note:
this tab is for informational purposes only and may not show all delinquencies, see the Taxes tab for more accurate delinquent taxes due.