Elected Officials
Courts
Departments
Initiatives
Open Government
About
Login / Register
Home
/
Property & Tax Records
/
Property Records
/
Property & Tax Search
/
Parcel Profile
/
Print View
Search for Another Parcel
Parcel Profile
Historical Card
Sketches
Photos
Tax Map
Taxes
Print View
Print This Page
Address: 2825 BERKELEY AVE
Parcel: 33072296000200
Parcel Profile
Address
2825 | BERKELEY | AVE
Street Status
PAVED
School District
MILLCREEK SCHOOL
Acreage
0.3535
Classification
R
Land Use Code
SINGLE FAMILY
Legal Description
2825 BERKELEY AVE 88 X 175
Square Feet
1471
Topo
LEVEL
Utility
ALL PUBLIC
Zoning
Please contact your municipal zoning officer
Deed Book
0029
Deed Page
1268
2026 Tax Values
Land Value / Taxable
28,400 / 28,400.00
Building Value / Taxable
70,500 / 70,500.00
Total Value / Taxable
98,900 / 98,900.00
Clean & Green
Inactive
Homestead Status
Active
Farmstead Status
Inactive
Lerta Amount
0
Lerta Expiration Year
0
Residential Data
Card 1
Style
RANCH
Basement
FULL
Year Built
1925
Exterior Wall
ALUMINUM/VINYL
Total Living Area
1471
Full Baths
1
Half Baths
0
Fuel Type
GAS
Heating
CENTRAL
Heating System
FORCED AIR
Stories
1.0
Total Bedrooms
3
Total Family Rooms
0
Total Rooms
7
Fireplaces
1
Other Buildings & Yards
Description
Built
Width
Length
Area
FRAME OR CB DETACHED GARAGE
1945
18
26
468
Sales History
Sale Date
Type
Price
Book / Page
Other Info
10/2/1987
0
0029 / 1268
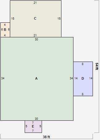
Parcel Sketches
Residential Card 1
A
MAIN
1020 square feet
B
1S FR ONE STORY FRAME
24 square feet
C
1S FR ONE STORY FRAME
315 square feet
D
UNFIN BSMT BASEMENT UNFINISHED 1S FR ONE STORY FRAME
112 square feet
E
OFP OPEN FRAME PORCH
35 square feet
Parcel Images
Please note:
this tab is for informational purposes only and may not show all delinquencies, see the Taxes tab for more accurate delinquent taxes due.