Elected Officials
Courts
Departments
Initiatives
Open Government
About
Login / Register
Home
/
Property & Tax Records
/
Property Records
/
Property & Tax Search
/
Parcel Profile
/
Print View
Search for Another Parcel
Parcel Profile
Historical Card
Sketches
Photos
Tax Map
Taxes
Print View
Print This Page
Address: 3018 GARLAND ST
Parcel: 33073299000800
Parcel Profile
Address
3018 | GARLAND | ST
Street Status
PAVED
School District
MILLCREEK SCHOOL
Acreage
0.3140
Classification
R
Land Use Code
SINGLE FAMILY
Legal Description
3018 GARLAND ST 120 X 114
Square Feet
936
Topo
LEVEL
Utility
ALL PUBLIC
Zoning
Please contact your municipal zoning officer
Deed Book
2021
Deed Page
033829
2026 Tax Values
Land Value / Taxable
28,000 / 28,000.00
Building Value / Taxable
48,200 / 48,200.00
Total Value / Taxable
76,200 / 76,200.00
Clean & Green
Inactive
Homestead Status
Active
Farmstead Status
Inactive
Lerta Amount
0
Lerta Expiration Year
0
Residential Data
Card 1
Style
CAPE
Basement
FULL
Year Built
1938
Exterior Wall
FRAME
Total Living Area
936
Full Baths
1
Half Baths
1
Fuel Type
GAS
Heating
CENTRAL
Heating System
FORCED AIR
Stories
1.5
Total Bedrooms
3
Total Family Rooms
0
Total Rooms
5
Fireplaces
0
Other Buildings & Yards
Description
Built
Width
Length
Area
FRAME OR CB DETACHED GARAGE
1960
20
24
480
FRAME UTILITY SHED
1960
10
10
100
Sales History
Sale Date
Type
Price
Book / Page
Other Info
12/23/2021
LAND & BUILDING
147000
2021 / 033829
FIDUCIARY DEED
1/26/1976
0
1194 / 0259
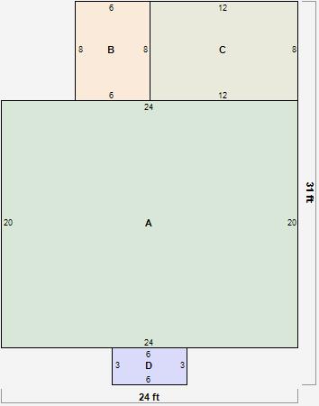
Parcel Sketches
Residential Card 1
A
MAIN
480 square feet
B
OFP OPEN FRAME PORCH
48 square feet
C
1S FR ONE STORY FRAME
96 square feet
D
EFP ENCL FRAME PORCH
18 square feet
Parcel Images
Please note:
this tab is for informational purposes only and may not show all delinquencies, see the Taxes tab for more accurate delinquent taxes due.