Elected Officials
Courts
Departments
Initiatives
Open Government
About
Login / Register
Home
/
Property & Tax Records
/
Property Records
/
Property & Tax Search
/
Parcel Profile
/
Print View
Search for Another Parcel
Parcel Profile
Historical Card
Sketches
Photos
Tax Map
Taxes
Print View
Print This Page
Address: 2313 W 32 ST
Parcel: 33074319000300
Parcel Profile
Address
2313 | W | 32 | ST
Street Status
PAVED
School District
MILLCREEK SCHOOL
Acreage
0.2836
Classification
R
Land Use Code
SINGLE FAMILY
Legal Description
2313 W 32 ST 85.5X144.49
Square Feet
1308
Topo
LEVEL
Utility
ALL PUBLIC
Zoning
Please contact your municipal zoning officer
Deed Book
2022
Deed Page
004032
2026 Tax Values
Land Value / Taxable
27,600 / 27,600.00
Building Value / Taxable
58,700 / 58,700.00
Total Value / Taxable
86,300 / 86,300.00
Clean & Green
Inactive
Homestead Status
Active
Farmstead Status
Inactive
Lerta Amount
0
Lerta Expiration Year
0
Residential Data
Card 1
Style
OLD STYLE
Basement
FULL
Year Built
1930
Exterior Wall
FRAME
Total Living Area
1308
Full Baths
1
Half Baths
0
Fuel Type
GAS
Heating
CENTRAL
Heating System
FORCED AIR
Stories
1.5
Total Bedrooms
3
Total Family Rooms
0
Total Rooms
7
Fireplaces
0
Other Buildings & Yards
Description
Built
Width
Length
Area
FRAME OR CB DETACHED GARAGE
1980
20
20
400
FRAME UTILITY SHED
2003
10
12
120
Sales History
Sale Date
Type
Price
Book / Page
Other Info
2/24/2022
LAND & BUILDING
165000
2022 / 004032
SPECIAL WARRANTY DEED
1/23/2017
LAND & BUILDING
117500
2017 / 001447
WARRANTY/SURVIVORSHIP DEED
4/25/2014
LAND & BUILDING
0
2014 / 007783
DEED
1/30/2012
LAND & BUILDING
0
2012 / 002633
SPECIAL WARRANTY DEED
9/3/1999
LAND & BUILDING
74500
660 / 1201
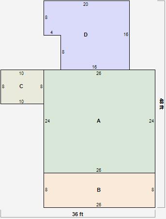
Parcel Sketches
Residential Card 1
A
MAIN
624 square feet
B
OFP OPEN FRAME PORCH
208 square feet
C
MA_PT CONC/MAS PATIO
80 square feet
D
WDDCK WOOD DECKS
288 square feet
Parcel Images
Please note:
this tab is for informational purposes only and may not show all delinquencies, see the Taxes tab for more accurate delinquent taxes due.