Elected Officials
Courts
Departments
Initiatives
Open Government
About
Login / Register
Home
/
Property & Tax Records
/
Property Records
/
Property & Tax Search
/
Parcel Profile
/
Print View
Search for Another Parcel
Parcel Profile
Historical Card
Sketches
Photos
Tax Map
Taxes
Print View
Print This Page
Address: 3313 HAMPSHIRE RD
Parcel: 33076333000600
Parcel Profile
Address
3313 | HAMPSHIRE | RD
Street Status
PAVED
School District
MILLCREEK SCHOOL
Acreage
0.2732
Classification
R
Land Use Code
SINGLE FAMILY
Legal Description
3313 HAMPSHIRE RD 85X140
Square Feet
2155
Topo
LEVEL
Utility
ALL PUBLIC
Zoning
Please contact your municipal zoning officer
Deed Book
0006
Deed Page
0953
2026 Tax Values
Land Value / Taxable
27,500 / 27,500.00
Building Value / Taxable
76,200 / 76,200.00
Total Value / Taxable
103,700 / 103,700.00
Clean & Green
Inactive
Homestead Status
Active
Farmstead Status
Inactive
Lerta Amount
0
Lerta Expiration Year
0
Residential Data
Card 1
Style
CAPE
Basement
PART
Year Built
1930
Exterior Wall
ALUMINUM/VINYL
Total Living Area
2155
Full Baths
2
Half Baths
0
Fuel Type
GAS
Heating
CENTRAL
Heating System
FORCED AIR
Stories
1.0
Total Bedrooms
4
Total Family Rooms
0
Total Rooms
9
Fireplaces
0
Other Buildings & Yards
No OBY Data Found
Sales History
Sale Date
Type
Price
Book / Page
Other Info
8/9/1988
0
0006 / 0953
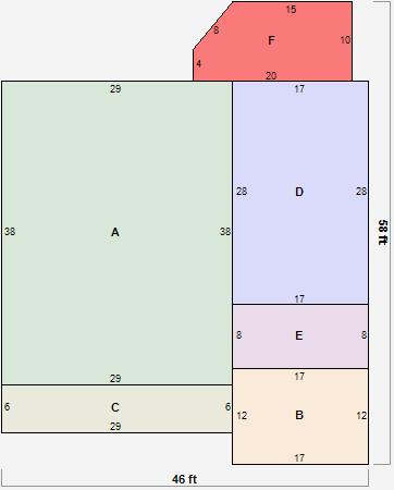
Parcel Sketches
Residential Card 1
A
MAIN
1102 square feet
B
WDDCK WOOD DECKS
204 square feet
C
WDDCK WOOD DECKS
174 square feet
D
1S FR ONE STORY FRAME
476 square feet
E
1S FR ONE STORY FRAME
136 square feet
F
WDDCK WOOD DECKS
185 square feet
Parcel Images
Please note:
this tab is for informational purposes only and may not show all delinquencies, see the Taxes tab for more accurate delinquent taxes due.