Elected Officials
Courts
Departments
Initiatives
Open Government
About
Login / Register
Home
/
Property & Tax Records
/
Property Records
/
Property & Tax Search
/
Parcel Profile
/
Print View
Search for Another Parcel
Parcel Profile
Historical Card
Sketches
Photos
Tax Map
Taxes
Print View
Print This Page
Address: 3506 HAMPSHIRE RD
Parcel: 33077335000700
Parcel Profile
Address
3506 | HAMPSHIRE | RD
Street Status
PAVED
School District
MILLCREEK SCHOOL
Acreage
0.3857
Classification
R
Land Use Code
SINGLE FAMILY
Legal Description
3506 HAMPSHIRE RD 120 X 140
Square Feet
1348
Topo
LEVEL
Utility
ALL PUBLIC
Zoning
Please contact your municipal zoning officer
Deed Book
2016
Deed Page
024844
2026 Tax Values
Land Value / Taxable
28,800 / 28,800.00
Building Value / Taxable
58,900 / 58,900.00
Total Value / Taxable
87,700 / 87,700.00
Clean & Green
Inactive
Homestead Status
Active
Farmstead Status
Inactive
Lerta Amount
0
Lerta Expiration Year
0
Residential Data
Card 1
Style
OLD STYLE
Basement
FULL
Year Built
1930
Exterior Wall
ALUMINUM/VINYL
Total Living Area
1348
Full Baths
2
Half Baths
0
Fuel Type
GAS
Heating
CENTRAL
Heating System
FORCED AIR
Stories
2.0
Total Bedrooms
2
Total Family Rooms
0
Total Rooms
6
Fireplaces
0
Other Buildings & Yards
Description
Built
Width
Length
Area
CABANA/GAZEBO
1997
10
14
140
FRAME UTILITY SHED
2007
12
24
288
Sales History
Sale Date
Type
Price
Book / Page
Other Info
11/14/2016
LAND & BUILDING
79900
2016 / 024844
SPECIAL WARRANTY DEED
12/21/2010
LAND & BUILDING
0
2010 / 032213
DEED
2/8/2006
LAND & BUILDING
75500
1305 / 0577
WARRANTY/SURVIVORSHIP DEED
8/27/1987
0
0025 / 1074
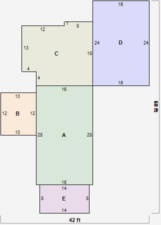
Parcel Sketches
Residential Card 1
A
MAIN
448 square feet
B
1S FR ONE STORY FRAME
120 square feet
C
1S FR ONE STORY FRAME
332 square feet
D
FR GR FRAME GARAGE
384 square feet
E
EFP ENCL FRAME PORCH
112 square feet
Parcel Images
Please note:
this tab is for informational purposes only and may not show all delinquencies, see the Taxes tab for more accurate delinquent taxes due.