Elected Officials
Courts
Departments
Initiatives
Open Government
About
Login / Register
Home
/
Property & Tax Records
/
Property Records
/
Property & Tax Search
/
Parcel Profile
/
Print View
Search for Another Parcel
Parcel Profile
Historical Card
Sketches
Photos
Tax Map
Taxes
Print View
Print This Page
Address: 3612 HAMPSHIRE RD
Parcel: 33077336001200
Parcel Profile
Address
3612 | HAMPSHIRE | RD
Street Status
PAVED
School District
MILLCREEK SCHOOL
Acreage
0.2571
Classification
R
Land Use Code
SINGLE FAMILY
Legal Description
3612 HAMPSHIRE RD 80 X 140
Square Feet
1108
Topo
LEVEL
Utility
ALL PUBLIC
Zoning
Please contact your municipal zoning officer
Deed Book
2011
Deed Page
002142
2025 Tax Values
Land Value / Taxable
27,300 / 27,300.00
Building Value / Taxable
65,200 / 65,200.00
Total Value / Taxable
92,500 / 92,500.00
Clean & Green
Inactive
Homestead Status
Inactive
Farmstead Status
Inactive
Lerta Amount
0
Lerta Expiration Year
0
Residential Data
Card 1
Style
BUNGALOW
Basement
FULL
Year Built
1936
Exterior Wall
ALUMINUM/VINYL
Total Living Area
1108
Full Baths
1
Half Baths
0
Fuel Type
GAS
Heating
CENTRAL A/C
Heating System
FORCED AIR
Stories
1.0
Total Bedrooms
3
Total Family Rooms
0
Total Rooms
5
Fireplaces
0
Other Buildings & Yards
No OBY Data Found
Sales History
Sale Date
Type
Price
Book / Page
Other Info
1/25/2011
LAND & BUILDING
0
2011 / 002142
QUIT CLAIM DEED
10/11/2004
LAND & BUILDING
95000
1180 / 1849
WARRANTY/SURVIVORSHIP DEED
12/16/2003
LAND & BUILDING
92000
1094 / 1891
WARRANTY/SURVIVORSHIP DEED
3/2/1999
LAND & BUILDING
57000
620 / 1871
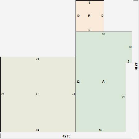
Parcel Sketches
Residential Card 1
A
MAIN
532 square feet
B
WDDCK WOOD DECKS
90 square feet
C
1S FR ONE STORY FRAME
576 square feet
Parcel Images