Elected Officials
Courts
Departments
Initiatives
Open Government
About
Login / Register
Home
/
Property & Tax Records
/
Property Records
/
Property & Tax Search
/
Parcel Profile
/
Print View
Search for Another Parcel
Parcel Profile
Historical Card
Sketches
Photos
Tax Map
Taxes
Print View
Print This Page
Address: 3703 LANCASTER RD
Parcel: 33077337002500
Parcel Profile
Address
3703 | LANCASTER | RD
Street Status
PAVED
School District
MILLCREEK SCHOOL
Acreage
0.4738
Classification
R
Land Use Code
SINGLE FAMILY
Legal Description
3703 LANCASTER RD 80 X 256.42I
Square Feet
1200
Topo
LEVEL
Utility
ALL PUBLIC
Zoning
Please contact your municipal zoning officer
Deed Book
1527
Deed Page
1083
2026 Tax Values
Land Value / Taxable
29,800 / 29,800.00
Building Value / Taxable
47,800 / 47,800.00
Total Value / Taxable
77,600 / 77,600.00
Clean & Green
Inactive
Homestead Status
Active
Farmstead Status
Inactive
Lerta Amount
0
Lerta Expiration Year
0
Residential Data
Card 1
Style
CAPE
Basement
FULL
Year Built
1930
Exterior Wall
BLOCK
Total Living Area
1200
Full Baths
1
Half Baths
0
Fuel Type
GAS
Heating
CENTRAL
Heating System
FORCED AIR
Stories
1.5
Total Bedrooms
3
Total Family Rooms
0
Total Rooms
5
Fireplaces
0
Other Buildings & Yards
No OBY Data Found
Sales History
Sale Date
Type
Price
Book / Page
Other Info
10/23/2008
LAND & BUILDING
0
1527 / 1083
QUIT CLAIM DEED
11/14/1997
LAND & BUILDING
43750
529 / 1578
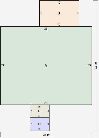
Parcel Sketches
Residential Card 1
A
MAIN
672 square feet
B
WDDCK WOOD DECKS
96 square feet
C
1SMAS MASONRY
24 square feet
D
MA_PT CONC/MAS PATIO
24 square feet
Parcel Images
Please note:
this tab is for informational purposes only and may not show all delinquencies, see the Taxes tab for more accurate delinquent taxes due.