Elected Officials
Courts
Departments
Initiatives
Open Government
About
Login / Register
Home
/
Property & Tax Records
/
Property Records
/
Property & Tax Search
/
Parcel Profile
/
Print View
Search for Another Parcel
Parcel Profile
Historical Card
Sketches
Photos
Tax Map
Taxes
Print View
Print This Page
Address: 3449 W 43 ST
Parcel: 33094555001800
Parcel Profile
Address
3449 | W | 43 | ST
Street Status
PAVED
School District
MILLCREEK SCHOOL
Acreage
0.7631
Classification
R
Land Use Code
SINGLE FAMILY
Legal Description
3449 W 43 ST 120 X 276.6
Square Feet
1176
Topo
LEVEL
Utility
ALL PUBLIC
Zoning
Please contact your municipal zoning officer
Deed Book
2012
Deed Page
011323
2026 Tax Values
Land Value / Taxable
27,100 / 27,100.00
Building Value / Taxable
51,300 / 51,300.00
Total Value / Taxable
78,400 / 78,400.00
Clean & Green
Inactive
Homestead Status
Active
Farmstead Status
Inactive
Lerta Amount
0
Lerta Expiration Year
0
Residential Data
Card 1
Style
CAPE
Basement
FULL
Year Built
1920
Exterior Wall
ALUMINUM/VINYL
Total Living Area
1176
Full Baths
1
Half Baths
0
Fuel Type
ELECTRIC
Heating
CENTRAL
Heating System
ELECTRIC
Stories
1.5
Total Bedrooms
2
Total Family Rooms
0
Total Rooms
5
Fireplaces
1
Other Buildings & Yards
Description
Built
Width
Length
Area
FRAME OR CB DETACHED GARAGE
1987
18
24
432
FRAME UTILITY SHED
1996
8
12
96
Sales History
Sale Date
Type
Price
Book / Page
Other Info
5/4/2012
LAND & BUILDING
77500
2012 / 011323
DEED
12/19/2005
LAND & BUILDING
0
1295 / 0382
QUIT CLAIM DEED
7/15/1953
0
0655 / 0211
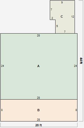
Parcel Sketches
Residential Card 1
A
MAIN
672 square feet
B
OFP OPEN FRAME PORCH
224 square feet
C
EFP ENCL FRAME PORCH
98 square feet
Parcel Images
Please note:
this tab is for informational purposes only and may not show all delinquencies, see the Taxes tab for more accurate delinquent taxes due.