Elected Officials
Courts
Departments
Initiatives
Open Government
About
Login / Register
Home
/
Property & Tax Records
/
Property Records
/
Property & Tax Search
/
Parcel Profile
/
Print View
Search for Another Parcel
Parcel Profile
Historical Card
Sketches
Photos
Tax Map
Taxes
Print View
Print This Page
Address: 3437 W 43 ST
Parcel: 33094555001900
Parcel Profile
Address
3437 | W | 43 | ST
Street Status
PAVED
School District
MILLCREEK SCHOOL
Acreage
0.7631
Classification
R
Land Use Code
SINGLE FAMILY
Legal Description
3437 W 43 ST 120 X 276.6
Square Feet
4096
Topo
LEVEL
Utility
ALL PUBLIC
Zoning
Please contact your municipal zoning officer
Deed Book
2022
Deed Page
019644
2026 Tax Values
Land Value / Taxable
27,100 / 27,100.00
Building Value / Taxable
282,625 / 282,625.00
Total Value / Taxable
309,725 / 309,725.00
Clean & Green
Inactive
Homestead Status
Active
Farmstead Status
Inactive
Lerta Amount
0
Lerta Expiration Year
0
Residential Data
Card 1
Style
CONVENTIONAL
Basement
NONE
Year Built
1934
Exterior Wall
ALUMINUM/VINYL
Total Living Area
4096
Full Baths
2
Half Baths
0
Fuel Type
GAS
Heating
CENTRAL A/C
Heating System
FORCED AIR
Stories
2.0
Total Bedrooms
3
Total Family Rooms
1
Total Rooms
7
Fireplaces
1
Other Buildings & Yards
Description
Built
Width
Length
Area
FRAME OR CB DETACHED GARAGE
1989
23
33
759
Sales History
Sale Date
Type
Price
Book / Page
Other Info
9/7/2022
LAND & BUILDING
330000
2022 / 019644
SPECIAL WARRANTY DEED
3/5/2015
LAND & BUILDING
325000
2015 / 004027
DEED
3/30/2010
LAND & BUILDING
0
2010 / 006890
QUIT CLAIM DEED
1/9/2009
LAND & BUILDING
0
1539 / 0055
QUIT CLAIM DEED
10/28/2008
LAND & BUILDING
0
1528 / 1184
QUIT CLAIM DEED
10/31/1994
0
0360 / 1596
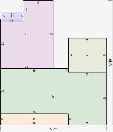
Parcel Sketches
Residential Card 1
A
MAIN
1424 square feet
B
OFP OPEN FRAME PORCH
216 square feet
C
1S FR ONE STORY FRAME
360 square feet
D
OFP OPEN FRAME PORCH
55 square feet
E
1S FR ONE STORY FRAME
888 square feet
Parcel Images
Please note:
this tab is for informational purposes only and may not show all delinquencies, see the Taxes tab for more accurate delinquent taxes due.