Elected Officials
Courts
Departments
Initiatives
Open Government
About
Login / Register
Home
/
Property & Tax Records
/
Property Records
/
Property & Tax Search
/
Parcel Profile
/
Print View
Search for Another Parcel
Parcel Profile
Historical Card
Sketches
Photos
Tax Map
Taxes
Print View
Print This Page
Address: 4524 LANCASTER RD
Parcel: 33094555004100
Parcel Profile
Address
4524 | LANCASTER | RD
Street Status
PAVED
School District
MILLCREEK SCHOOL
Acreage
4.9700
Classification
R
Land Use Code
SINGLE FAMILY
Legal Description
4524 LANCASTER RD 4.97 AC
Square Feet
1132
Topo
LEVEL
Utility
ALL PUBLIC
Zoning
Please contact your municipal zoning officer
Deed Book
1223
Deed Page
0592
2026 Tax Values
Land Value / Taxable
50,300 / 50,300.00
Building Value / Taxable
83,200 / 83,200.00
Total Value / Taxable
133,500 / 133,500.00
Clean & Green
Inactive
Homestead Status
Inactive
Farmstead Status
Inactive
Lerta Amount
0
Lerta Expiration Year
0
Residential Data
Card 1
Style
OLD STYLE
Basement
FULL
Year Built
1930
Exterior Wall
ALUMINUM/VINYL
Total Living Area
1132
Full Baths
1
Half Baths
0
Fuel Type
GAS
Heating
CENTRAL
Heating System
FORCED AIR
Stories
1.0
Total Bedrooms
2
Total Family Rooms
1
Total Rooms
8
Fireplaces
0
Other Buildings & Yards
Description
Built
Width
Length
Area
FRAME OR CB DETACHED GARAGE
1984
16
24
384
FRAME OR CB DETACHED GARAGE
2005
30
49
1470
Sales History
Sale Date
Type
Price
Book / Page
Other Info
4/6/2005
LAND & BUILDING
0
1223 / 0592
WARRANTY/SURVIVORSHIP DEED
9/29/2000
LAND & BUILDING
0
729 / 1027
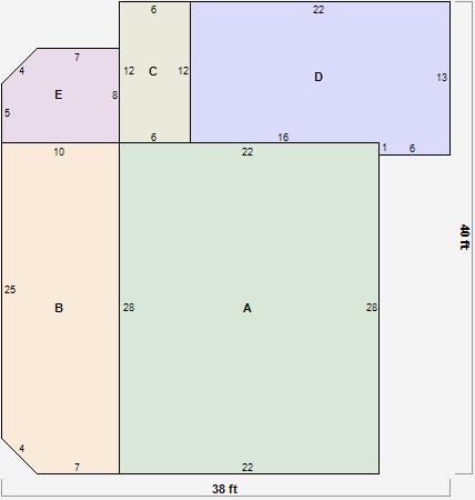
Parcel Sketches
Residential Card 1
A
MAIN
616 square feet
B
OFP OPEN FRAME PORCH
276 square feet
C
OFP OPEN FRAME PORCH
72 square feet
D
1S FR ONE STORY FRAME
270 square feet
E
WDDCK WOOD DECKS
76 square feet
Parcel Images
Please note:
this tab is for informational purposes only and may not show all delinquencies, see the Taxes tab for more accurate delinquent taxes due.