Elected Officials
Courts
Departments
Initiatives
Open Government
About
Login / Register
Home
/
Property & Tax Records
/
Property Records
/
Property & Tax Search
/
Parcel Profile
/
Print View
Search for Another Parcel
Parcel Profile
Historical Card
Sketches
Photos
Tax Map
Taxes
Print View
Print This Page
Address: 4815 WEST ST
Parcel: 33098420001700
Parcel Profile
Address
4815 | WEST | ST
Street Status
PAVED
School District
MILLCREEK SCHOOL
Acreage
0.1267
Classification
R
Land Use Code
SINGLE FAMILY
Legal Description
4815 WEST ST 40 X 137.5
Square Feet
1353
Topo
LEVEL
Utility
ALL PUBLIC
Zoning
Please contact your municipal zoning officer
Deed Book
2021
Deed Page
028700
2025 Tax Values
Land Value / Taxable
19,400 / 19,400.00
Building Value / Taxable
49,600 / 49,600.00
Total Value / Taxable
69,000 / 69,000.00
Clean & Green
Inactive
Homestead Status
Active
Farmstead Status
Inactive
Lerta Amount
0
Lerta Expiration Year
0
Residential Data
Card 1
Style
OLD STYLE
Basement
FULL
Year Built
1910
Exterior Wall
FRAME
Total Living Area
1353
Full Baths
1
Half Baths
0
Fuel Type
GAS
Heating
CENTRAL
Heating System
FORCED AIR
Stories
1.5
Total Bedrooms
3
Total Family Rooms
0
Total Rooms
6
Fireplaces
0
Other Buildings & Yards
Description
Built
Width
Length
Area
FRAME OR CB DETACHED GARAGE
1940
12
20
240
Sales History
Sale Date
Type
Price
Book / Page
Other Info
10/26/2021
LAND & BUILDING
0
2021 / 028700
FIDUCIARY DEED
10/13/1970
0
1031 / 0515
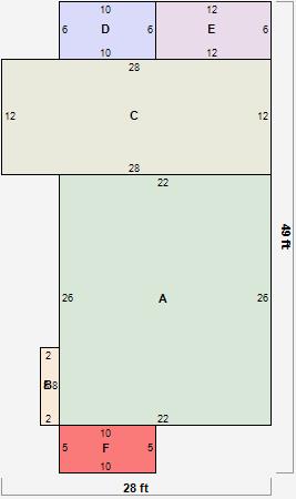
Parcel Sketches
Residential Card 1
A
MAIN
572 square feet
B
UNFIN BSMT BASEMENT UNFINISHED FRBAY FRAME BAY
16 square feet
C
1S FR ONE STORY FRAME
336 square feet
D
MA_PT CONC/MAS PATIO
60 square feet
E
EFP ENCL FRAME PORCH
72 square feet
F
OFP OPEN FRAME PORCH
50 square feet
Parcel Images