Address: 1735 W GRANDVIEW BLVD   Parcel: 33099424000300
Parcel Profile
Address1735 | W | GRANDVIEW | BLVD
Street StatusPAVED
School DistrictMILLCREEK SCHOOL
Acreage0.4132
ClassificationR
Land Use CodeSINGLE FAMILY
Legal Description1735 W GRANDVIEW BLVD 120X150
Square Feet1392
TopoLEVEL
UtilityALL PUBLIC
ZoningPlease contact your municipal zoning officer
Deed Book2020
Deed Page018753
2025 Tax Values
Land Value / Taxable24,600 / 24,600.00
Building Value / Taxable87,160 / 87,160.00
Total Value / Taxable111,760 / 111,760.00
Clean & GreenInactive
Homestead StatusInactive
Farmstead StatusInactive
Lerta Amount0
Lerta Expiration Year0
Residential Data
Card 1
     StyleCONVENTIONAL
     BasementFULL
     Year Built1936
     Exterior WallALUMINUM/VINYL
     Total Living Area1392
     Full Baths1
     Half Baths1
     Fuel TypeGAS
     HeatingCENTRAL
     Heating SystemFORCED AIR
     Stories1.0
     Total Bedrooms4
     Total Family Rooms0
     Total Rooms7
     Fireplaces0
Other Buildings & Yards
No OBY Data Found
Sales History
Sale DateTypePriceBook / PageOther Info
9/16/2020LAND & BUILDING02020 / 018753SPECIAL WARRANTY DEED
10/14/1958 00786 / 0328 



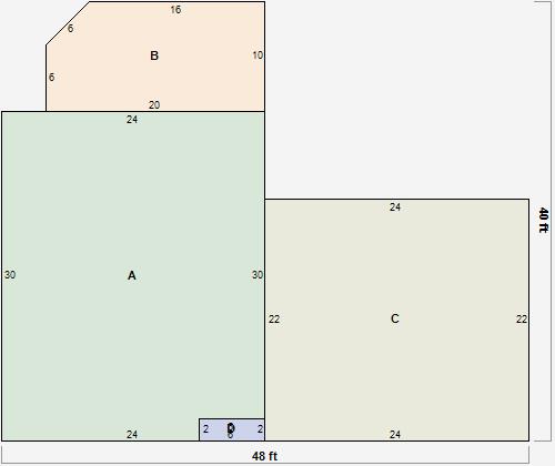
Parcel Sketches

Residential Card 1

Residential Card 1
AMAIN720 square feet
B EFP ENCL FRAME PORCH 192 square feet
C 1S FR ONE STORY FRAME AT UN ATTIC-UNFINISHED 528 square feet
D MA STOOP/TERR MAS STOOP 12 square feet

Parcel Images

parcel photo