Elected Officials
Courts
Departments
Initiatives
Open Government
About
Login / Register
Home
/
Property & Tax Records
/
Property Records
/
Property & Tax Search
/
Parcel Profile
/
Print View
Search for Another Parcel
Parcel Profile
Historical Card
Sketches
Photos
Tax Map
Taxes
Print View
Print This Page
Address: 4926 LEXINGTON ST
Parcel: 33099429000700
Parcel Profile
Address
4926 | LEXINGTON | ST
Street Status
PAVED
School District
MILLCREEK SCHOOL
Acreage
0.2525
Classification
R
Land Use Code
SINGLE FAMILY
Legal Description
4926 LEXINGTON ST LOTS 40, 41 & PT 10 80 X 140 IRR
Square Feet
984
Topo
LEVEL
Utility
ALL PUBLIC
Zoning
Please contact your municipal zoning officer
Deed Book
2011
Deed Page
022009
2026 Tax Values
Land Value / Taxable
22,500 / 22,500.00
Building Value / Taxable
61,730 / 61,730.00
Total Value / Taxable
84,230 / 84,230.00
Clean & Green
Inactive
Homestead Status
Inactive
Farmstead Status
Inactive
Lerta Amount
0
Lerta Expiration Year
0
Residential Data
Card 1
Style
CAPE
Basement
FULL
Year Built
1932
Exterior Wall
ALUMINUM/VINYL
Total Living Area
984
Full Baths
1
Half Baths
0
Fuel Type
GAS
Heating
CENTRAL
Heating System
FORCED AIR
Stories
1.0
Total Bedrooms
3
Total Family Rooms
0
Total Rooms
6
Fireplaces
0
Other Buildings & Yards
Description
Built
Width
Length
Area
FRAME OR CB DETACHED GARAGE
1940
29
40
1160
Sales History
Sale Date
Type
Price
Book / Page
Other Info
9/16/2011
LAND & BUILDING
0
2011 / 022009
DEED
10/18/2001
LAND & BUILDING
15000
819 / 1901
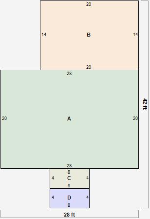
Parcel Sketches
Residential Card 1
A
MAIN
560 square feet
B
UNFIN BSMT BASEMENT UNFINISHED 1S FR ONE STORY FRAME
280 square feet
C
1S FR ONE STORY FRAME
32 square feet
D
MA STOOP/TERR MAS STOOP
32 square feet
Parcel Images
Please note:
this tab is for informational purposes only and may not show all delinquencies, see the Taxes tab for more accurate delinquent taxes due.