Elected Officials
Courts
Departments
Initiatives
Open Government
About
Login / Register
Home
/
Property & Tax Records
/
Property Records
/
Property & Tax Search
/
Parcel Profile
/
Print View
Search for Another Parcel
Parcel Profile
Historical Card
Sketches
Photos
Tax Map
Taxes
Print View
Print This Page
Address: 1520 W GORE RD
Parcel: 33099434001100
Parcel Profile
Address
1520 | W | GORE | RD
Street Status
PAVED
School District
MILLCREEK SCHOOL
Acreage
0.2224
Classification
R
Land Use Code
SINGLE FAMILY
Legal Description
1520 W GORE RD 32.76X152 IR
Square Feet
1464
Topo
LEVEL
Utility
ALL PUBLIC
Zoning
Please contact your municipal zoning officer
Deed Book
0683
Deed Page
0546
2026 Tax Values
Land Value / Taxable
22,100 / 22,100.00
Building Value / Taxable
75,330 / 75,330.00
Total Value / Taxable
97,430 / 97,430.00
Clean & Green
Inactive
Homestead Status
Active
Farmstead Status
Inactive
Lerta Amount
0
Lerta Expiration Year
0
Residential Data
Card 1
Style
OLD STYLE
Basement
FULL
Year Built
1930
Exterior Wall
MASONRY & FRAME
Total Living Area
1464
Full Baths
2
Half Baths
0
Fuel Type
GAS
Heating
CENTRAL
Heating System
FORCED AIR
Stories
1.5
Total Bedrooms
3
Total Family Rooms
0
Total Rooms
8
Fireplaces
0
Other Buildings & Yards
Description
Built
Width
Length
Area
FRAME OR CB DETACHED GARAGE
1930
12
22
264
CARPORT
1930
12
22
264
Sales History
Sale Date
Type
Price
Book / Page
Other Info
1/13/2000
LAND & BUILDING
63000
0683 / 0546
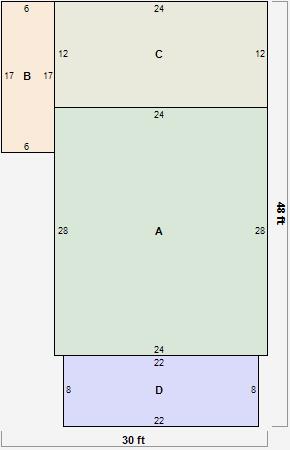
Parcel Sketches
Residential Card 1
A
MAIN
672 square feet
B
EFP ENCL FRAME PORCH
102 square feet
C
UNFIN BSMT BASEMENT UNFINISHED 1S FR ONE STORY FRAME
288 square feet
D
OFP OPEN FRAME PORCH
176 square feet
Parcel Images
Please note:
this tab is for informational purposes only and may not show all delinquencies, see the Taxes tab for more accurate delinquent taxes due.