Elected Officials
Courts
Departments
Initiatives
Open Government
About
Login / Register
Home
/
Property & Tax Records
/
Property Records
/
Property & Tax Search
/
Parcel Profile
/
Print View
Search for Another Parcel
Parcel Profile
Historical Card
Sketches
Photos
Tax Map
Taxes
Print View
Print This Page
Address: 4820 ROSLINDALE AVE
Parcel: 33100438000200
Parcel Profile
Address
4820 | ROSLINDALE | AVE
Street Status
PAVED
School District
MILLCREEK SCHOOL
Acreage
0.2479
Classification
R
Land Use Code
SINGLE FAMILY
Legal Description
4820 ROSLINDALE AVE 60 X 120 IRR
Square Feet
1805
Topo
LEVEL
Utility
ALL PUBLIC
Zoning
Please contact your municipal zoning officer
Deed Book
1085
Deed Page
1049
2026 Tax Values
Land Value / Taxable
31,400 / 31,400.00
Building Value / Taxable
124,100 / 124,100.00
Total Value / Taxable
155,500 / 155,500.00
Clean & Green
Inactive
Homestead Status
Inactive
Farmstead Status
Inactive
Lerta Amount
0
Lerta Expiration Year
0
Residential Data
Card 1
Style
CAPE
Basement
FULL
Year Built
1930
Exterior Wall
ALUMINUM/VINYL
Total Living Area
1805
Full Baths
1
Half Baths
1
Fuel Type
GAS
Heating
CENTRAL A/C
Heating System
FORCED AIR
Stories
1.5
Total Bedrooms
3
Total Family Rooms
0
Total Rooms
7
Fireplaces
1
Other Buildings & Yards
Description
Built
Width
Length
Area
FRAME OR CB DETACHED GARAGE
1930
21
21
441
Sales History
Sale Date
Type
Price
Book / Page
Other Info
11/12/2003
LAND & BUILDING
135500
1085 / 1049
DEED
12/1/1987
0
0035 / 0681
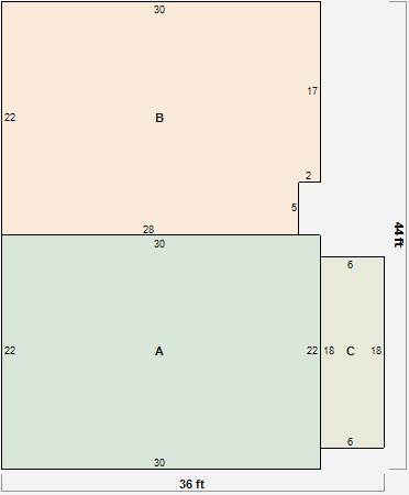
Parcel Sketches
Residential Card 1
A
MAIN
660 square feet
B
1S FR ONE STORY FRAME
650 square feet
C
MA_PT CONC/MAS PATIO
108 square feet
Parcel Images
Please note:
this tab is for informational purposes only and may not show all delinquencies, see the Taxes tab for more accurate delinquent taxes due.