Elected Officials
Courts
Departments
Initiatives
Open Government
About
Login / Register
Home
/
Property & Tax Records
/
Property Records
/
Property & Tax Search
/
Parcel Profile
/
Print View
Search for Another Parcel
Parcel Profile
Historical Card
Sketches
Photos
Tax Map
Taxes
Print View
Print This Page
Address: 4805 ROSLINDALE AVE
Parcel: 33100444000100
Parcel Profile
Address
4805 | ROSLINDALE | AVE
Street Status
PAVED
School District
MILLCREEK SCHOOL
Acreage
0.1954
Classification
R
Land Use Code
SINGLE FAMILY
Legal Description
4805 ROSLINDALE AVE 126.45X126.8
Square Feet
2004
Topo
LEVEL
Utility
ALL PUBLIC
Zoning
Please contact your municipal zoning officer
Deed Book
2017
Deed Page
020342
2026 Tax Values
Land Value / Taxable
29,500 / 29,500.00
Building Value / Taxable
99,210 / 99,210.00
Total Value / Taxable
128,710 / 128,710.00
Clean & Green
Inactive
Homestead Status
Active
Farmstead Status
Inactive
Lerta Amount
0
Lerta Expiration Year
0
Residential Data
Card 1
Style
COLONIAL
Basement
FULL
Year Built
1928
Exterior Wall
FRAME
Total Living Area
2004
Full Baths
1
Half Baths
1
Fuel Type
GAS
Heating
CENTRAL
Heating System
FORCED AIR
Stories
2.0
Total Bedrooms
3
Total Family Rooms
0
Total Rooms
6
Fireplaces
3
Other Buildings & Yards
Description
Built
Width
Length
Area
FRAME OR CB DETACHED GARAGE
1940
21
18
378
Sales History
Sale Date
Type
Price
Book / Page
Other Info
10/2/2018
LAND & BUILDING
205000
2017 / 020342
SPECIAL WARRANTY DEED
8/25/2000
LAND & BUILDING
174000
722 / 1824
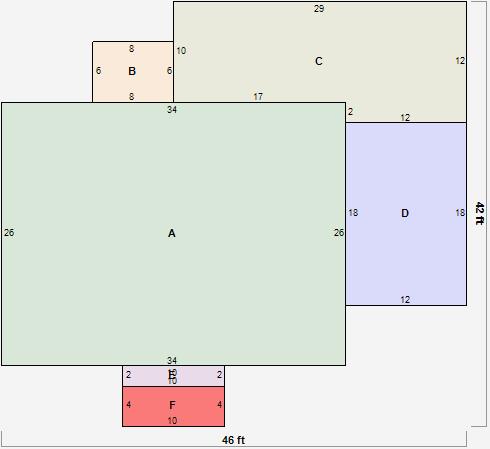
Parcel Sketches
Residential Card 1
A
MAIN
884 square feet
B
EFP ENCL FRAME PORCH
48 square feet
C
WDDCK WOOD DECKS
314 square feet
D
1S FR ONE STORY FRAME
216 square feet
E
OFP OPEN FRAME PORCH FRBAY FRAME BAY
20 square feet
F
OFP OPEN FRAME PORCH
40 square feet
Parcel Images
Please note:
this tab is for informational purposes only and may not show all delinquencies, see the Taxes tab for more accurate delinquent taxes due.