Elected Officials
Courts
Departments
Initiatives
Open Government
About
Login / Register
Home
/
Property & Tax Records
/
Property Records
/
Property & Tax Search
/
Parcel Profile
/
Print View
Search for Another Parcel
Parcel Profile
Historical Card
Sketches
Photos
Tax Map
Taxes
Print View
Print This Page
Address: 1147 W ARLINGTON RD
Parcel: 33100444000200
Parcel Profile
Address
1147 | W | ARLINGTON | RD
Street Status
PAVED
School District
MILLCREEK SCHOOL
Acreage
0.5962
Classification
R
Land Use Code
SINGLE FAMILY
Legal Description
1147 W ARLINGTON RD 169.64 X 140 IRR
Square Feet
2860
Topo
LEVEL
Utility
ALL PUBLIC
Zoning
Please contact your municipal zoning officer
Deed Book
2011
Deed Page
026271
2026 Tax Values
Land Value / Taxable
37,900 / 37,900.00
Building Value / Taxable
161,900 / 161,900.00
Total Value / Taxable
199,800 / 199,800.00
Clean & Green
Inactive
Homestead Status
Inactive
Farmstead Status
Inactive
Lerta Amount
0
Lerta Expiration Year
0
Residential Data
Card 1
Style
CONVENTIONAL
Basement
FULL
Year Built
1924
Exterior Wall
ALUMINUM/VINYL
Total Living Area
2860
Full Baths
2
Half Baths
1
Fuel Type
GAS
Heating
CENTRAL
Heating System
HOT WATER
Stories
2.0
Total Bedrooms
4
Total Family Rooms
0
Total Rooms
10
Fireplaces
1
Other Buildings & Yards
Description
Built
Width
Length
Area
FRAME OR CB DETACHED GARAGE
2008
22
20
440
Sales History
Sale Date
Type
Price
Book / Page
Other Info
11/2/2011
LAND & BUILDING
207500
2011 / 026271
SPECIAL WARRANTY DEED
7/1/2005
LAND & BUILDING
0
1247 / 2201
QUIT CLAIM DEED
2/9/2004
LAND & BUILDING
210000
1106 / 1178
SPECIAL WARRANTY DEED
9/18/1991
0
0177 / 0075
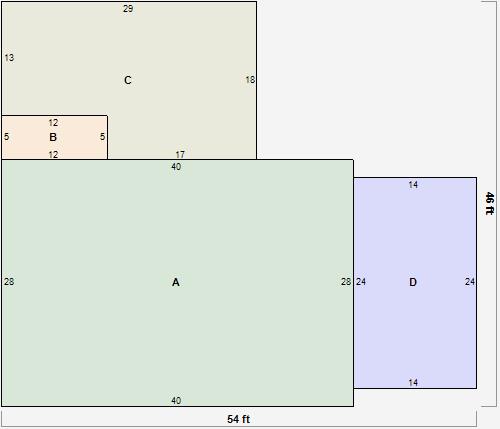
Parcel Sketches
Residential Card 1
A
MAIN
1120 square feet
B
1S FR ONE STORY FRAME
60 square feet
C
MA_PT CONC/MAS PATIO
462 square feet
D
1S FR ONE STORY FRAME
336 square feet
Parcel Images
Please note:
this tab is for informational purposes only and may not show all delinquencies, see the Taxes tab for more accurate delinquent taxes due.