Elected Officials
Courts
Departments
Initiatives
Open Government
About
Login / Register
Home
/
Property & Tax Records
/
Property Records
/
Property & Tax Search
/
Parcel Profile
/
Print View
Search for Another Parcel
Parcel Profile
Historical Card
Sketches
Photos
Tax Map
Taxes
Print View
Print This Page
Address: 945 W ARLINGTON RD
Parcel: 33101457000200
Parcel Profile
Address
945 | W | ARLINGTON | RD
Street Status
PAVED
School District
MILLCREEK SCHOOL
Acreage
0.4442
Classification
R
Land Use Code
SINGLE FAMILY
Legal Description
945 W ARLINGTON RD 129.24X150 IR
Square Feet
1632
Topo
LEVEL
Utility
ALL PUBLIC
Zoning
Please contact your municipal zoning officer
Deed Book
1576
Deed Page
0072
2026 Tax Values
Land Value / Taxable
27,600 / 27,600.00
Building Value / Taxable
95,950 / 95,950.00
Total Value / Taxable
123,550 / 123,550.00
Clean & Green
Inactive
Homestead Status
Active
Farmstead Status
Inactive
Lerta Amount
0
Lerta Expiration Year
0
Residential Data
Card 1
Style
OLD STYLE
Basement
FULL
Year Built
1930
Exterior Wall
ALUMINUM/VINYL
Total Living Area
1632
Full Baths
2
Half Baths
0
Fuel Type
GAS
Heating
CENTRAL
Heating System
FORCED AIR
Stories
2.0
Total Bedrooms
3
Total Family Rooms
1
Total Rooms
8
Fireplaces
1
Other Buildings & Yards
Description
Built
Width
Length
Area
FRAME OR CB DETACHED GARAGE
1930
18
22
396
Sales History
Sale Date
Type
Price
Book / Page
Other Info
4/17/1985
0
1576 / 0072
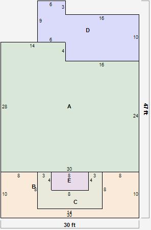
Parcel Sketches
Residential Card 1
A
MAIN
776 square feet
B
OFP OPEN FRAME PORCH
188 square feet
C
OFP OPEN FRAME PORCH 1S FR ONE STORY FRAME
80 square feet
D
EFP ENCL FRAME PORCH
214 square feet
E
EFP ENCL FRAME PORCH
32 square feet
Parcel Images
Please note:
this tab is for informational purposes only and may not show all delinquencies, see the Taxes tab for more accurate delinquent taxes due.