Elected Officials
Courts
Departments
Initiatives
Open Government
About
Login / Register
Home
/
Property & Tax Records
/
Property Records
/
Property & Tax Search
/
Parcel Profile
/
Print View
Search for Another Parcel
Parcel Profile
Historical Card
Sketches
Photos
Tax Map
Taxes
Print View
Print This Page
Address: 2123 NORCROSS RD
Parcel: 33111491003400
Parcel Profile
Address
2123 | NORCROSS | RD
Street Status
PAVED
School District
MILLCREEK SCHOOL
Acreage
1.6000
Classification
R
Land Use Code
SINGLE FAMILY
Legal Description
2123 NORCROSS RD 1.6 AC
Square Feet
1210
Topo
LEVEL
Utility
ALL PUBLIC
Zoning
Please contact your municipal zoning officer
Deed Book
1611
Deed Page
1390
2026 Tax Values
Land Value / Taxable
36,600 / 36,600.00
Building Value / Taxable
86,030 / 86,030.00
Total Value / Taxable
122,630 / 122,630.00
Clean & Green
Inactive
Homestead Status
Inactive
Farmstead Status
Inactive
Lerta Amount
0
Lerta Expiration Year
0
Residential Data
Card 1
Style
CAPE
Basement
FULL
Year Built
1928
Exterior Wall
MASONRY & FRAME
Total Living Area
1210
Full Baths
1
Half Baths
0
Fuel Type
GAS
Heating
CENTRAL A/C
Heating System
FORCED AIR
Stories
1.0
Total Bedrooms
3
Total Family Rooms
0
Total Rooms
6
Fireplaces
0
Other Buildings & Yards
Description
Built
Width
Length
Area
FRAME OR CB DETACHED GARAGE
1930
24
24
576
Sales History
Sale Date
Type
Price
Book / Page
Other Info
12/29/2009
LAND & BUILDING
0
1611 / 1390
DEED
8/12/1977
0
1275 / 0597
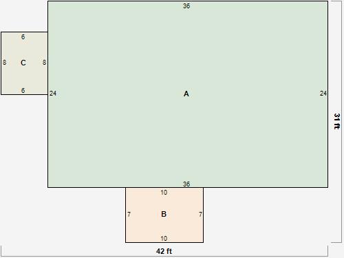
Parcel Sketches
Residential Card 1
A
MAIN
864 square feet
B
EMP ENCL MASONRY PORCH
70 square feet
C
UNFIN BSMT BASEMENT UNFINISHED EMP ENCL MASONRY PORCH
48 square feet
Parcel Images
Please note:
this tab is for informational purposes only and may not show all delinquencies, see the Taxes tab for more accurate delinquent taxes due.