Elected Officials
Courts
Departments
Initiatives
Open Government
About
Login / Register
Home
/
Property & Tax Records
/
Property Records
/
Property & Tax Search
/
Parcel Profile
/
Print View
Search for Another Parcel
Parcel Profile
Historical Card
Sketches
Photos
Tax Map
Taxes
Print View
Print This Page
Address: 1731 NORCROSS RD
Parcel: 33112493000600
Parcel Profile
Address
1731 | NORCROSS | RD
Street Status
PAVED
School District
MILLCREEK SCHOOL
Acreage
8.2900
Classification
R
Land Use Code
SINGLE FAMILY
Legal Description
1731 NORCROSS RD 8.29 AC
Square Feet
2002
Topo
LEVEL
Utility
GAS | WELL | SEPTIC
Zoning
Please contact your municipal zoning officer
Deed Book
1587
Deed Page
0114
2026 Tax Values
Land Value / Taxable
47,700 / 47,700.00
Building Value / Taxable
119,400 / 119,400.00
Total Value / Taxable
167,100 / 167,100.00
Clean & Green
Inactive
Homestead Status
Active
Farmstead Status
Inactive
Lerta Amount
0
Lerta Expiration Year
0
Residential Data
Card 1
Style
OLD STYLE
Basement
FULL
Year Built
1850
Exterior Wall
ALUMINUM/VINYL
Total Living Area
2002
Full Baths
1
Half Baths
1
Fuel Type
GAS
Heating
CENTRAL
Heating System
FORCED AIR
Stories
2.0
Total Bedrooms
3
Total Family Rooms
0
Total Rooms
7
Fireplaces
0
Other Buildings & Yards
Description
Built
Width
Length
Area
FRAME UTILITY SHED
2019
12
18
216
FOUR SIDE CLOSED MTL POLE BLDG
2022
0
0
2016
1S LEAN TO
2022
0
0
360
Sales History
Sale Date
Type
Price
Book / Page
Other Info
7/9/1985
0
1587 / 0114
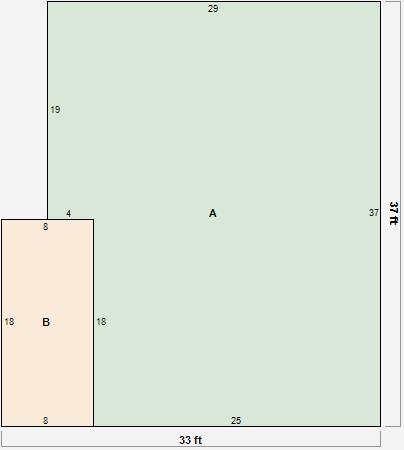
Parcel Sketches
Residential Card 1
A
MAIN
1001 square feet
B
OFP OPEN FRAME PORCH
144 square feet
Parcel Images
Please note:
this tab is for informational purposes only and may not show all delinquencies, see the Taxes tab for more accurate delinquent taxes due.