Elected Officials
Courts
Departments
Initiatives
Open Government
About
Login / Register
Home
/
Property & Tax Records
/
Property Records
/
Property & Tax Search
/
Parcel Profile
/
Print View
Search for Another Parcel
Parcel Profile
Historical Card
Sketches
Photos
Tax Map
Taxes
Print View
Print This Page
Address: 1547 LEHIGH ST
Parcel: 33120540000200
Parcel Profile
Address
1547 | LEHIGH | ST
Street Status
PAVED
School District
MILLCREEK SCHOOL
Acreage
0.2009
Classification
R
Land Use Code
SINGLE FAMILY
Legal Description
1547 LEHIGH ST 70X125
Square Feet
1224
Topo
LEVEL
Utility
ALL PUBLIC
Zoning
Please contact your municipal zoning officer
Deed Book
1586
Deed Page
0502
2026 Tax Values
Land Value / Taxable
21,800 / 21,800.00
Building Value / Taxable
78,450 / 78,450.00
Total Value / Taxable
100,250 / 100,250.00
Clean & Green
Inactive
Homestead Status
Active
Farmstead Status
Inactive
Lerta Amount
0
Lerta Expiration Year
0
Residential Data
Card 1
Style
RANCH
Basement
FULL
Year Built
1917
Exterior Wall
ALUMINUM/VINYL
Total Living Area
1224
Full Baths
1
Half Baths
1
Fuel Type
GAS
Heating
CENTRAL A/C
Heating System
FORCED AIR
Stories
1.0
Total Bedrooms
2
Total Family Rooms
0
Total Rooms
4
Fireplaces
0
Other Buildings & Yards
Description
Built
Width
Length
Area
FRAME OR CB DETACHED GARAGE
1917
13
24
312
Sales History
Sale Date
Type
Price
Book / Page
Other Info
7/5/1985
0
1586 / 0502
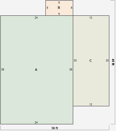
Parcel Sketches
Residential Card 1
A
MAIN
864 square feet
B
UNFIN BSMT BASEMENT UNFINISHED FR UT FRAME UTILITY BUILDING
45 square feet
C
UNFIN BSMT BASEMENT UNFINISHED 1S FR ONE STORY FRAME
360 square feet
Parcel Images
Please note:
this tab is for informational purposes only and may not show all delinquencies, see the Taxes tab for more accurate delinquent taxes due.