Elected Officials
Courts
Departments
Initiatives
Open Government
About
Login / Register
Home
/
Property & Tax Records
/
Property Records
/
Property & Tax Search
/
Parcel Profile
/
Print View
Search for Another Parcel
Parcel Profile
Historical Card
Sketches
Photos
Tax Map
Taxes
Print View
Print This Page
Address: 5226 LEXINGTON ST
Parcel: 33121546000900
Parcel Profile
Address
5226 | LEXINGTON | ST
Street Status
PAVED
School District
MILLCREEK SCHOOL
Acreage
0.2135
Classification
R
Land Use Code
SINGLE FAMILY
Legal Description
5226 LEXINGTON ST 60 X 155
Square Feet
1176
Topo
LEVEL
Utility
ALL PUBLIC
Zoning
Please contact your municipal zoning officer
Deed Book
2024
Deed Page
015482
2026 Tax Values
Land Value / Taxable
22,000 / 22,000.00
Building Value / Taxable
92,400 / 92,400.00
Total Value / Taxable
114,400 / 114,400.00
Clean & Green
Inactive
Homestead Status
Inactive
Farmstead Status
Inactive
Lerta Amount
0
Lerta Expiration Year
0
Residential Data
Card 1
Style
CONVENTIONAL
Basement
FULL
Year Built
1930
Exterior Wall
FRAME
Total Living Area
1176
Full Baths
1
Half Baths
1
Fuel Type
GAS
Heating
CENTRAL
Heating System
FORCED AIR
Stories
1.5
Total Bedrooms
3
Total Family Rooms
0
Total Rooms
5
Fireplaces
0
Other Buildings & Yards
Description
Built
Width
Length
Area
FRAME OR CB DETACHED GARAGE
2011
24
24
576
Sales History
Sale Date
Type
Price
Book / Page
Other Info
9/25/2024
LAND & BUILDING
0
2024 / 015482
CORRECTIVE DEED
7/31/2017
LAND & BUILDING
73100
2017 / 016265
SPECIAL WARRANTY DEED
7/1/2009
LAND & BUILDING
111000
1573 / 1445
SPECIAL WARRANTY DEED
9/29/2004
LAND & BUILDING
70000
1177 / 0432
WARRANTY/SURVIVORSHIP DEED
9/9/1985
0
1596 / 0306
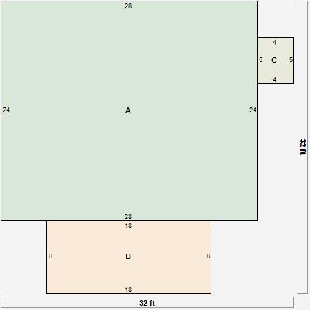
Parcel Sketches
Residential Card 1
A
MAIN
672 square feet
B
OFP OPEN FRAME PORCH
144 square feet
C
EFP ENCL FRAME PORCH
20 square feet
Parcel Images
Please note:
this tab is for informational purposes only and may not show all delinquencies, see the Taxes tab for more accurate delinquent taxes due.