Elected Officials
Courts
Departments
Initiatives
Open Government
About
Login / Register
Home
/
Property & Tax Records
/
Property Records
/
Property & Tax Search
/
Parcel Profile
/
Print View
Search for Another Parcel
Parcel Profile
Historical Card
Sketches
Photos
Tax Map
Taxes
Print View
Print This Page
Address: 5230 LEXINGTON ST
Parcel: 33121546001000
Parcel Profile
Address
5230 | LEXINGTON | ST
Street Status
PAVED
School District
MILLCREEK SCHOOL
Acreage
0.2112
Classification
R
Land Use Code
SINGLE FAMILY
Legal Description
5230 LEXINGTON ST 80 X 115
Square Feet
1352
Topo
LEVEL
Utility
ALL PUBLIC
Zoning
Please contact your municipal zoning officer
Deed Book
1027
Deed Page
0474
2026 Tax Values
Land Value / Taxable
22,000 / 22,000.00
Building Value / Taxable
91,040 / 91,040.00
Total Value / Taxable
113,040 / 113,040.00
Clean & Green
Inactive
Homestead Status
Inactive
Farmstead Status
Inactive
Lerta Amount
0
Lerta Expiration Year
0
Residential Data
Card 1
Style
CAPE
Basement
FULL
Year Built
1942
Exterior Wall
ALUMINUM/VINYL
Total Living Area
1352
Full Baths
2
Half Baths
0
Fuel Type
GAS
Heating
CENTRAL A/C
Heating System
FORCED AIR
Stories
1.5
Total Bedrooms
3
Total Family Rooms
0
Total Rooms
5
Fireplaces
0
Other Buildings & Yards
Description
Built
Width
Length
Area
FRAME OR CB DETACHED GARAGE
1973
20
24
480
Sales History
Sale Date
Type
Price
Book / Page
Other Info
8/7/1970
0
1027 / 0474
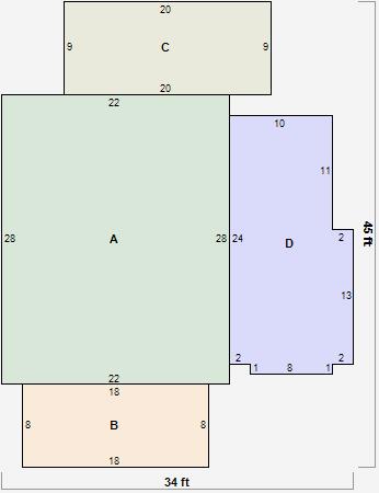
Parcel Sketches
Residential Card 1
A
MAIN
616 square feet
B
OFP OPEN FRAME PORCH
144 square feet
C
WDDCK WOOD DECKS
180 square feet
D
1S FR ONE STORY FRAME
274 square feet
Parcel Images
Please note:
this tab is for informational purposes only and may not show all delinquencies, see the Taxes tab for more accurate delinquent taxes due.