Elected Officials
Courts
Departments
Initiatives
Open Government
About
Login / Register
Home
/
Property & Tax Records
/
Property Records
/
Property & Tax Search
/
Parcel Profile
/
Print View
Search for Another Parcel
Parcel Profile
Historical Card
Sketches
Photos
Tax Map
Taxes
Print View
Print This Page
Address: 1720 W 55 ST
Parcel: 33121604000900
Parcel Profile
Address
1720 | W | 55 | ST
Street Status
PAVED
School District
MILLCREEK SCHOOL
Acreage
0.1639
Classification
R
Land Use Code
SINGLE FAMILY
Legal Description
1720 W 55 ST 41.65X119.27IR
Square Feet
1235
Topo
LEVEL
Utility
ALL PUBLIC
Zoning
Please contact your municipal zoning officer
Deed Book
2014
Deed Page
026136
2026 Tax Values
Land Value / Taxable
20,800 / 20,800.00
Building Value / Taxable
70,540 / 70,540.00
Total Value / Taxable
91,340 / 91,340.00
Clean & Green
Inactive
Homestead Status
Inactive
Farmstead Status
Inactive
Lerta Amount
0
Lerta Expiration Year
0
Residential Data
Card 1
Style
CAPE
Basement
FULL
Year Built
1930
Exterior Wall
ALUMINUM/VINYL
Total Living Area
1235
Full Baths
1
Half Baths
0
Fuel Type
GAS
Heating
CENTRAL
Heating System
FORCED AIR
Stories
1.0
Total Bedrooms
2
Total Family Rooms
0
Total Rooms
5
Fireplaces
1
Other Buildings & Yards
No OBY Data Found
Sales History
Sale Date
Type
Price
Book / Page
Other Info
12/3/2014
LAND & BUILDING
0
2014 / 026136
SPECIAL WARRANTY DEED
4/21/2006
LAND & BUILDING
70000
1321 / 1242
DEED
10/18/2005
LAND & BUILDING
0
1279 / 1275
QUIT CLAIM DEED
10/18/2005
LAND & BUILDING
0
1279 / 1272
FIDUCIARY DEED
4/22/1977
0
1260 / 0365
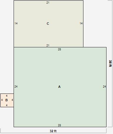
Parcel Sketches
Residential Card 1
A
MAIN
672 square feet
B
EFP ENCL FRAME PORCH
16 square feet
C
1S FR ONE STORY FRAME
294 square feet
Parcel Images
Please note:
this tab is for informational purposes only and may not show all delinquencies, see the Taxes tab for more accurate delinquent taxes due.