Elected Officials
Courts
Departments
Initiatives
Open Government
About
Login / Register
Home
/
Property & Tax Records
/
Property Records
/
Property & Tax Search
/
Parcel Profile
/
Print View
Search for Another Parcel
Parcel Profile
Historical Card
Sketches
Photos
Tax Map
Taxes
Print View
Print This Page
Address: 5142 GRUBB RD
Parcel: 33127565002300
Parcel Profile
Address
5142 | GRUBB | RD
Street Status
PAVED
School District
MILLCREEK SCHOOL
Acreage
1.0400
Classification
R
Land Use Code
SINGLE FAMILY
Legal Description
5142 GRUBB RD 1.04 AC CAL
Square Feet
2088
Topo
LEVEL | ROLLING
Utility
GAS | WELL | SEPTIC
Zoning
Please contact your municipal zoning officer
Deed Book
1663
Deed Page
0299
2026 Tax Values
Land Value / Taxable
36,200 / 36,200.00
Building Value / Taxable
38,900 / 38,900.00
Total Value / Taxable
75,100 / 75,100.00
Clean & Green
Inactive
Homestead Status
Active
Farmstead Status
Inactive
Lerta Amount
0
Lerta Expiration Year
0
Residential Data
Card 1
Style
OLD STYLE
Basement
PART
Year Built
1870
Exterior Wall
FRAME
Total Living Area
2088
Full Baths
1
Half Baths
0
Fuel Type
GAS
Heating
CENTRAL
Heating System
HOT WATER
Stories
2.0
Total Bedrooms
4
Total Family Rooms
1
Total Rooms
9
Fireplaces
0
Other Buildings & Yards
Description
Built
Width
Length
Area
FOUR SIDE CLOSED WD POLE BLDG
2000
18
24
432
Sales History
Sale Date
Type
Price
Book / Page
Other Info
2/21/2017
0
2017 / 003517
CONDEMNATION
12/30/1986
0
1663 / 0299
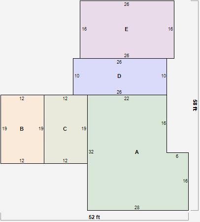
Parcel Sketches
Residential Card 1
A
MAIN
800 square feet
B
WDDCK WOOD DECKS
228 square feet
C
1S FR ONE STORY FRAME
228 square feet
D
1S FR ONE STORY FRAME
260 square feet
E
FR UT FRAME UTILITY BUILDING
416 square feet
Parcel Images
Please note:
this tab is for informational purposes only and may not show all delinquencies, see the Taxes tab for more accurate delinquent taxes due.