Elected Officials
Courts
Departments
Initiatives
Open Government
About
Login / Register
Home
/
Property & Tax Records
/
Property Records
/
Property & Tax Search
/
Parcel Profile
/
Print View
Search for Another Parcel
Parcel Profile
Historical Card
Sketches
Photos
Tax Map
Taxes
Print View
Print This Page
Address: 4962 STERRETTANIA RD
Parcel: 33128376006500
Parcel Profile
Address
4962 | STERRETTANIA | RD
Street Status
PAVED
School District
MILLCREEK SCHOOL
Acreage
0.6555
Classification
R
Land Use Code
SINGLE FAMILY
Legal Description
4962 STERRETTANIA RD 180X265I
Square Feet
1371
Topo
LEVEL
Utility
GAS | WELL | SEPTIC
Zoning
Please contact your municipal zoning officer
Deed Book
2025
Deed Page
011944
2026 Tax Values
Land Value / Taxable
31,800 / 31,800.00
Building Value / Taxable
48,500 / 48,500.00
Total Value / Taxable
80,300 / 80,300.00
Clean & Green
Inactive
Homestead Status
Active
Farmstead Status
Inactive
Lerta Amount
0
Lerta Expiration Year
0
Residential Data
Card 1
Style
OLD STYLE
Basement
NONE
Year Built
1900
Exterior Wall
COMPOSITION
Total Living Area
1371
Full Baths
1
Half Baths
0
Fuel Type
GAS
Heating
CENTRAL
Heating System
FORCED AIR
Stories
2.0
Total Bedrooms
2
Total Family Rooms
1
Total Rooms
6
Fireplaces
0
Other Buildings & Yards
No OBY Data Found
Sales History
Sale Date
Type
Price
Book / Page
Other Info
7/18/2025
LAND & BUILDING
150500
2025 / 011944
SPECIAL WARRANTY DEED
4/30/2013
LAND & BUILDING
68000
2013 / 010469
DEED
7/2/1987
0
0018 / 0599
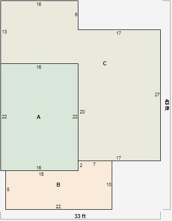
Parcel Sketches
Residential Card 1
A
MAIN
352 square feet
B
EFP ENCL FRAME PORCH
190 square feet
C
1S FR ONE STORY FRAME
667 square feet
Parcel Images
Please note:
this tab is for informational purposes only and may not show all delinquencies, see the Taxes tab for more accurate delinquent taxes due.